新加坡200㎡现代风住宅设计,简约与功能的完美融合
2025.11.09 3 0
【现代简约大宅设计】新加坡200余平米现代风格住宅以开放式布局为核心,通过浅木色与纯白主调营造通透感,客厅采用无主灯设计搭配落地窗,引入自然光的同时以灰色模块沙发与几何茶几凸显简约美学,餐厨区配置中岛台与嵌入式家电,黑色金属吊灯与木饰面橱柜形成材质碰撞,主卧延续中性色调,悬浮床与线性壁灯打造轻盈视觉,衣帽间采用玻璃隔断增强空间联动,卫浴间运用仿石材瓷砖与独立浴缸,局部点缀绿植平衡冷调,全屋通过隐藏式收纳与智能家居系统,在满足功能需求的同时诠释了现代主义的"少即是多"理念。(198字)
在狮城的高密度生活里,我们总在追寻一方“既能拥抱都市节奏,又能安放松弛情绪”的空间——这套位于新加坡的现代风格住宅,便是为平衡“高效居住”与“质感生活”而生的答案。
没有冗余的装饰堆砌,却藏着对新加坡气候与生活习惯的精准洞察:通透的玻璃隔断引南洋阳光满室流淌,解决多雨季节的采光需求;浅色系基底搭配局部木质感元素,中和热带的燥热感,触摸时尽是温润。

设计介绍:
设计风格:现代风格
设计面积:200㎡+
空间格局:两层
设计团队:汀兰设计
项目地址:新加坡
装修造价:半包估算1900/㎡
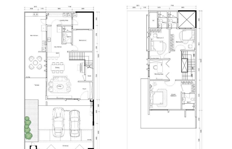
- 平面图

这套现代风格住宅,用动线的精妙、功能的迭新、质感的拿捏,给出了属于多代同堂家庭的理想答案。
一层:把 “南洋生活感” 嵌进功能区
双厨房系统:Wet Kitchen(湿厨房)满足重油烟烹饪需求,Dry Kitchen(干厨房)+ 中岛台则是社交型料理、轻食制作的主场,两者通过动线串联,让烹饪也成了家庭互动的纽带。
公区的呼吸感:Living(客厅)与 Terrace(露台)相连,南洋阳光与清风自由穿梭;Dining(餐厅)旁的休闲区,既是亲友小聚的茶话角,也能变身临时工作坊。
细节里的烟火气:Laundry Area(洗衣区)与 Bath 4(卫浴)的就近布局,让家务动线更高效;Car Porch(停车区)与 Driveway(车道)的规划,解决了狮城家庭的停车刚需。
二层:为 “多元生活” 定制的私域
卧室的专属感:Master Bedroom(主卧)配备独立 Bath 1(卫浴),打造酒店式起居体验;Bedroom 2、3 则通过软装差异,适配长辈或儿童的居住习惯。
工作区的巧思:Working Area(工作区)的位置,既保证了办公的私密性,又能与家人保持互动,是后疫情时代 “居家办公” 的理想解决方案。
收纳的隐形术:全屋多处嵌入式收纳(如卧室衣柜、楼梯间储物),让 200㎡的空间 “显大又能装”,完美适配新加坡家庭的物品收纳需求。
- 玄关


在新加坡的 200㎡现代住宅里,入户玄关不是过渡空间,而是生活质感的第一句开场白。
当你推开门,首先被温暖的木调与极简白的碰撞吸引 —— 定制鞋柜以 “满墙收纳 + 开放展示” 的组合,悄悄解决了多人口家庭的鞋物收纳难题;嵌入式灯带勾勒出木质造型墙的柔和轮廓,在南洋的阳光里晕出一层温馨的光晕;角落的绿植是点睛之笔,让 “回家” 的仪式感,从推开门的这一刻就开始生长。
- 客厅




浅色系基底像一张温柔的画布,原木家具的肌理是点睛的笔触:定制电视柜将收纳藏于无形,开放格摆上几本设计杂志,瞬间让空间有了 “生活气”;大尺寸落地窗与百叶帘的组合,既能让阳光自由穿梭,又能在午后拉上营造私密的休憩角落,完美适配狮城的热带气候。
这里的动线设计藏着巧思:客厅与餐厅、厨房无缝衔接,家人在厨房备餐时,坐在沙发上就能随时互动;朋友小聚时,从沙发区到餐厅的过渡自然流畅,一杯咖啡的功夫,就能让话题在空间里自由生长。就连角落的钢琴区,都成了生活的调味剂 —— 周末的午后,琴声与谈笑声在空间里交融,这才是家该有的模样。
- 餐厅


餐厅从不是 “吃饭的角落”—— 原木餐椅混搭艺术感吊灯,南洋阳光透过百叶帘洒在餐桌,每一顿饭都是生活的美学盛宴,每一次用餐都是生活美学的具象表达,把狮城家庭的烟火气过成艺术感。
- 西厨



当现代设计语言邂逅新加坡的生活质感,这间西厨以极简线条、温暖木调与功能美学,重新定义烹饪与社交的场域。
以纯净米白为基底,搭配原木台面的自然肌理,既延续了现代风格的利落感,又因木色的温润注入家的温度。大理石纹背景墙的轻奢点缀,让空间在简约中暗藏精致;玻璃柜门与开放式收纳的组合,将餐具与食材化作陈列艺术,实用与颜值双向奔赴。
- 厨房


当原木的温厚邂逅极简的利落,这间厨房在新加坡的居所里,演绎出 “烹饪即艺术” 的空间哲学。
以木色吊顶与地板营造自然基底,纯白橱柜勾勒出现代线条的干净感;超大采光面将蓝天与树影引入餐厨,让做饭时也能拥抱新加坡的明媚气候。功能布局上,嵌入式家电与分层收纳巧妙融合,每一寸空间都为 “实用美学” 而生 —— 在这里,煎炒烹炸的烟火气与空间的雅致感,达成了最和谐的共生。
- 露台

当原木的温暖遇上绿植的蓬勃,这间露台便成了现代家居里的 “自然疗愈所”。
以木色地面与吊顶打造温馨基底,错落的绿植景观将新加坡的热带风情引入空间 —— 龟背竹的舒展、繁花的绚烂,搭配网格花架的艺术感,让每一次驻足都像在城市绿洲里漫游。休闲区的木椅与圆桌,既是午后品茶的小天地,也是亲友小聚的温馨场域。
- 主卧室



当原木的质朴邂逅暖调的雅致,这间主卧室便成了现代家居里的 “松弛感绿洲”。
以木色地板与床头背景墙奠定温馨基底,米白系软装柔化空间线条;无主灯设计搭配线性光带,让光线如呼吸般自然晕染。角落的休闲躺椅区,是睡前阅读的私享天地;精致梳妆台则藏着对生活仪式感的追求。每一处细节都在诠释:卧室不止是睡觉的地方,更是卸下疲惫、疗愈身心的 “都市避难所”。
- 主卧室衣帽间


当极简美学撞上收纳智慧,这间衣帽间便成了现代家居里的 “时尚策展地”。
以纯白为底,木色为韵,玻璃柜门与线性灯光的组合,让每一件衣物都如展品般精致陈列;分层收纳与隐藏式抽屉,把 “乱中无序” 变成 “井井有条”。在这里,找衣不再是 “翻箱倒柜”,而是一场充满仪式感的穿搭探索 —— 从日常通勤到宴会盛装,所有风格都能被妥帖安放。
- 主卫


当木的温润邂逅石的雅致,这间主卫便成了现代家居里的 “疗愈结界”。
以暖灰为基调,原木台面与大理石立柱碰撞出轻奢质感;悬浮式洗漱区搭配带灯镜柜,既放大空间感又藏住收纳细节。淋浴区的黑色五金与嵌入式壁龛,让功能与美学无缝衔接;智能浴霸与百叶窗的设计,兼顾舒适与隐私。
- 书房




当极简线条遇上木调温情,这间书房便成了现代家居里的 “灵感发生器”。
以纯白柜体与原木台面构建空间骨架,玻璃折叠门既划分区域又保持通透;无主灯设计与线性光源的组合,让光线适配阅读、工作等多重场景。焦糖色办公椅的复古质感,搭配绿植的自然气息,在理性的功能布局中注入感性的舒适温度。
- 洗衣房


纯白柜体 + 原木台面,简约又温馨。上下收纳柜 + 双洗衣机,空间利用拉满。从此洗衣不再繁琐,而是治愈日常的小确幸。
本网站的文章部分内容可能来源于网络,仅供大家学习与参考,如有侵权,请联系站长QQ18376601进行删除处理。

蜀ICP备2021014085号-4