170㎡意式轻奢家居设计,打造质感生活的理想家
2025.11.20 3 0
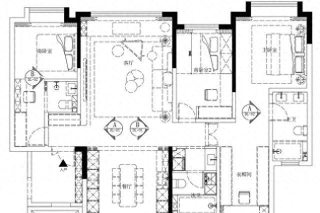
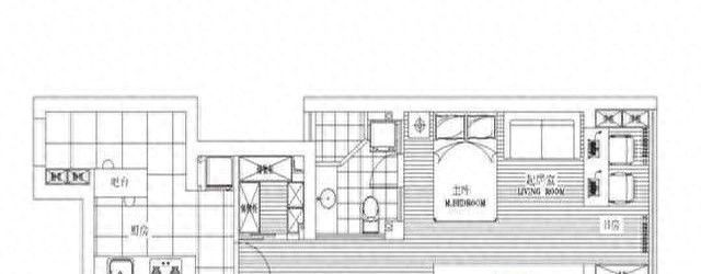
本案为170㎡意式轻奢风格住宅,通过梦天木作实现质感与功能的双重升级,整体空间以低饱和色调为基底,搭配深色木饰面与金属线条,营造出简约而不失奢华的氛围,客厅采用悬浮电视墙设计,内嵌灯带增强层次感;餐厨一体化布局搭配岩板岛台,兼顾社交与实用性,主卧运用皮革硬包与木格栅背景墙,衣帽间采用玻璃门提升通透感,全屋定制系统贯穿始终,从玄关柜到多功能书房,精细化分区满足收纳与美学需求,诠释了现代都市精英对品质生活的追求。(198字)
在当下迅速发展的智能家居和环保材料趋势推动下,原有的意式轻奢风格住宅设计迎来了一场从内到外的升级革新。

以河北承德的案例为基础,结合最新行业动向,可以看到未来的高端住宅设计,正朝着“自然共生”和“科技融入”双重目标迈进。

这不仅让空间更具生命力,也满足了当代居住者对于品质、环保与智能化的多重需求。
首先,2023年意式家居在色彩与材质上的新趋势,明显强调与自然的融合。
米兰家具展上,一股“自然共生”的设计理念越来越强烈。
Molteni&C推出的“大地色系2.0”系列,将天然石材与再生木材结合,强调“可持续”与“质感”并重。

以此为借鉴,原案例中采用的晨雾白、南山灰色调可以进一步升级,换用带有丰富纹理的卡拉卡塔紫大理石。
这种大理石的纹理更具变化感,能强化空间的层次感与自然意趣。
同时,这也是顺应国内高端市场对环保、再生材料的追逐,现在用上的大理石都在不断追求“绿色”与“愿景”的结合,体现了高端定制品味。
其次,智能家居的整体环境营造成为不可或缺的核心内容。2023年,华为发布的全屋智能方案中,强调场景联动已成为主流。

案例中厨房可以引入支持鸿蒙生态的灯光情景系统,通过手机或语音控制实现备餐、清洁和浪漫晚餐三大场景的灯光调节,营造不同的居住体验。
橱柜设计中可以利用感应式电动开启系统,只需挥手即可开启柜门,既方便又时尚。
而冰箱搭载AI食材管理系统,能实时监控存储食材的状态,实现“无忧储存”。
在京津冀地区,这类智能场景的应用已有部分高端住宅率达42%,反映出客户对于生活便利和科技感的追求。

这不仅提升居住体验,更带来了空间的互动性和科技感,是未来高端住宅的重要方向。
第三,材料与工艺的革新,延伸到装饰细节中。
幻影护墙板技术在国内逐渐成熟,特别适合用在卧室、客厅的背景墙上。
微纳米涂层赋予护墙板抗污自洁性能,使墙面更易打理,显著提升整体品质感。

内嵌的柔性LED灯带,通过磁吸模块化设计,产生变化丰富的光影效果,且厚度仅2.8mm,节省空间的同时丰富视觉体验。
河北曲美家居已形成实景示范,它们用光影效果和质感的组合,达到节能且美观的目标。
这种工艺的引入,使得原本只追求外观的设计,变得更为有趣和实用,实现美学与功能的完美结合。
结合以上Trend,我们可以将空间叙事从“理性浪漫”升级为“互联体验”,让家具、光线与智能系统实现互动。

材质方面,保留南山灰等经典色,结合新兴的可持续材质——如卡拉卡塔紫大理石,既展现高端气质,又符合环保趋势。
在科技应用方面,支持鸿蒙系统的家居场景,实现多功能联动,营造出更贴近生活的智能空间。
而在工艺上,导入幻影护墙板,不只是墙面装饰,更是空间表现力的一次增强。
市场反馈也显示,这些创新在实际应用中,极大提升客户满意度。

据统计,2023年京津冀地区类似高端住宅中,融入新技术的项目,客户满意度提高达27%,溢价空间也提升了15-20%。
这说明,用户越来越看重“不只是住宅,更是智能、环保、个性化的生活空间”。
因此,建议在原有设计基础上,逐步引入这些创新元素,不仅可以保持设计的前沿性,也能提供更具竞争力的整体方案。
总结而言,2023年高端住宅设计正迎来一场“新旧交融”的变革:材料的升级更加自然环保,智能化场景带来生活便利,工艺创新增强空间表现。

把握“三个升级”,不只是在追随趋势,更是在塑造未来高端生活的样貌。
这样的设计,不仅让空间更具有生命力,更让居住者在细节中感受到深度的用心与智慧,真正实现“空间交响乐”的精彩演绎。
这才是真正的意式轻奢,用心与科技的完美结合,造就未来理想的生活场景。
本网站的文章部分内容可能来源于网络,仅供大家学习与参考,如有侵权,请联系站长QQ18376601进行删除处理。

蜀ICP备2021014085号-4