90后夫妻的奶油小法风新家,温馨与高级感的完美融合
2025.08.27 3 0
长沙一对90后夫妻打造奶油小法式风格新家,全屋以低饱和奶油色为主调,搭配雕花石膏线、拱形门洞等复古元素,营造出温柔浪漫的居家氛围,客厅采用人字拼木地板与弧形沙发,搭配黄铜水晶吊灯,既显质感又不失慵懒感;餐厨区通过岛台联动设计增强互动性,定制橱柜与长虹玻璃门提升空间通透性,主卧采用双开门设计,搭配丝绒床品和艺术挂画,细节处彰显高级审美,全屋通过柔和的色彩过渡、弧形线条的运用,以及现代与复古家具的混搭,实现了“温馨感”与“高级感”的完美平衡,被网友赞为“理想家居模板”。(字数:198)
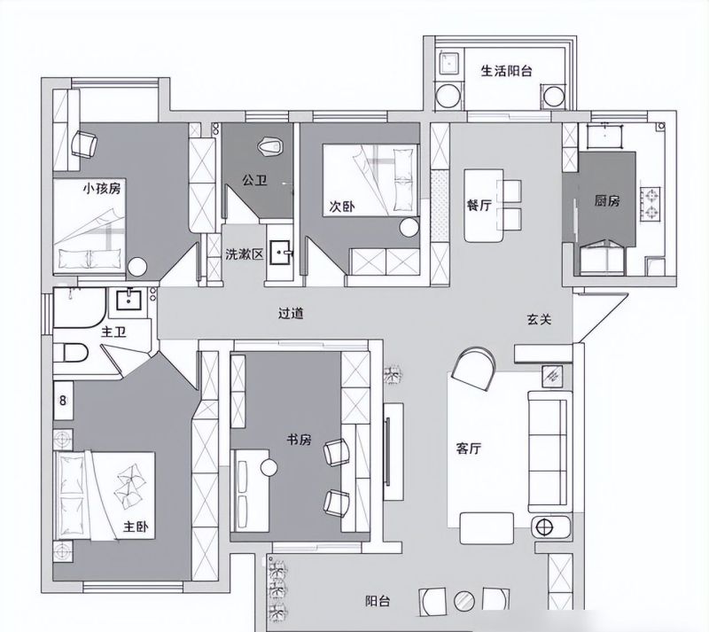
很多家庭都遇到过入户没玄关的问题,开门直接见客餐厅,总觉得少了点过渡的安全感,但这家人没硬怼隔断,反而把客厅和阳台的推拉门拆了,地面通铺瓷砖——你别说,空间一下子就敞亮起来,进门先看见的是连在一起的客厅和阳台,谁还会盯着“没玄关”这点啊?
毕竟宽敞感才是最直观的舒服。

餐厅做卡座真的戳中我这种小空间爱好者的心!
本来餐厅面积不大,卡座既能坐下六个人,底下还能装东西,后面那抹爱马仕橙加得特别妙——不是那种扎眼的亮,像给奶油蛋糕抹了点蜜,甜得刚好,瞬间把“实用”变成了“有品味”。

主卧室的设计我也喜欢,简单的线条,1.8米大床加两个床头柜还能放下成品柜,床尾一门到顶的无拉手衣柜,看着整整齐齐的,不用翻来找去就很省心。
主卫虽然小,居然挤下了浴缸——我就说嘛,泡澡的幸福感是淋浴比不了的,哪怕空间小一点,只要材质选好打扫的,泡个热水澡放松的劲儿,比什么都强,谁不想下班回家能泡会儿啊?

小孩房用挂机而不是吊顶,太懂家长心思了!
小孩房本来就不大,做个复杂吊顶堆在那,既压抑又难擦灰,挂机不仅节能,擦的时候搬个凳子就够着,比藏在吊顶里的中央空调实用多了——小孩房要的是温馨,不是“看起来高级”的累赘。

书房的布局也实在,一边做了书桌加书柜的组合,另一边摆沙发和成品柜,既能安安静静办公,偶尔朋友来也能坐下来聊聊天,空间没浪费不说,还兼顾了实用和舒服。
再说奶油小法风,很多人装不好就会变成“大白墙加网红家具”,但这家人的重点在“轻硬装重软装”——没有复杂的造型,靠阳台的弧形吊顶、衣柜的一门到顶线条,还有颜色的协调搭配,把奶色调的温柔和小法的精致揉在一起,不是那种浮在表面的“好看”,是像裹了层温温的糖霜,越看越舒服。

其实装修最打动人的从来不是多贵的材料,是有没有把日子的细节装进去:比如解决没玄关的尴尬,比如小餐厅里既要坐得下又要能装,比如在小卫生间里留个泡澡的地方,比如小孩房里不做压抑的吊顶——这些细节不是“设计技巧”,是把“我想怎么活”放进了每一寸空间里。
你们说,装修的意义不就是这样吗?

不是装给别人看的“漂亮房子”,是装成自己一进门就想叹气“真好啊”的家。





















本网站的文章部分内容可能来源于网络,仅供大家学习与参考,如有侵权,请联系站长QQ18376601进行删除处理。

蜀ICP备2021014085号-4