89㎡奶油风三口之家,治愈满分的生活温柔模样
2025.08.27 3 0
【治愈系奶油风住宅】这套89㎡的三口之家以柔和的奶油色系为主调,打造出温暖治愈的居住空间,设计师通过开放式布局串联客餐厨区域,搭配圆弧形家具和软糯布艺,营造出柔软松弛的生活氛围,儿童房采用云朵灯和浅木色家具,兼顾童趣与安全性;主卧以低饱和度配色搭配隐形收纳,实现美观与实用平衡,全屋运用微水泥地面、哑光材质和间接照明,弱化棱角的同时提升空间质感,完美诠释了"奶油风"内核——用温柔的笔触包裹日常,让家成为卸下疲惫的柔软港湾。(字数:198)
设计空间 | 书画艺术 | 生活美学
喜欢设计进入抖音号 “空间设计 ” → 看视频版“点个关注 + ”
空间设计出品┃转载请注明来源
来源:空间设计(ID:kongjiansheji88)
现代奶油风

每天给你分享一个案例设计
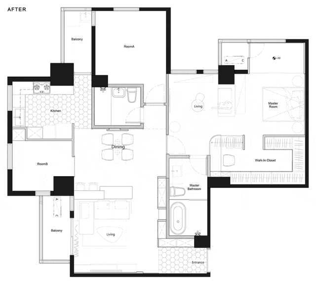
这套住宅面积:89㎡(套内)
格局:3 室 2厅 2卫
人数:2大 1小
由 宸光設計设计

1. 玄关设计:
玄关区恰好是独立一隅,地坪铺设塑胶六角砖
盼望以收纳功能为先,便在一入门右侧
穿引奶白底蕴,打造了一座高柜体
因鞋量相当多,柜内更隐置旋转式鞋柜
对侧采用相同色系特殊漆为面
从一径短廊,可一探室内风格

2. 客厅设计:
为使客厅不仅保有朗澈之美,又能形成独立一域
在全室由幽微的奶油底蕴围塑之下
先转化沙发背靠为木纹,刻意断开了相似色
突显出安定姿态,高台将高度落在 110 公分



侧边柜体利用系统板材交织特殊漆面
形成了展示开放柜
更援引了浅弧面,回应了电视墙的一介倒弧造型
为浮显主墙为主场聚焦的画面
便以一笔深色漆料为底
完美转化了大面积立面若以浅奶色延展
可能会带来的单一,造成视觉扁平感
侧边引注喜爱的格栅饰板,并与线性灯带交织
形成了无声却有节奏的丰润之美

3. 餐厅设计:
不仅要闻为客餐厅,揽入宽敞度之余
也盼视角一拥流畅度
期望从中岛、餐桌,都可观看电视
便以合宜高度砌造中岛与高台相衔
摆放高脚椅,即是每日晨起时
放缓心情轻啜一杯咖啡之处
也是偶时与访友小酌之地


为了将用餐区兜绕成完整之域
前侧与中岛相邻 120 公分廊宽
后侧便从实体墙面,往两侧延展出两道门
一道进入厨房、另一进入工作室
门均造以贴膜玻璃拉门
光线可无界穿梭,壁面收折圆弧角
从桌面到桌脚,穿引柔弧线条
延续了全室设计空间,亦可避免孩童碰撞

4. 厨房设计:
根据屋主身高,与使用习惯
厨房台面均推升至 90 公分
选由人造石打造为台面,橱柜由系统柜烤漆
使烹饪区也漫入了奶油底调,立面铺叙双弧形磁砖
当自然光悠悠洒下,让料理时光带来惬意之乐

5. 主卧设计:
旅行最期待留宿饭店一晚
更盼家中有精品饭店般的卧室
卸下一道隔间墙,打通为一大房
揉合了小客客厅、卧眠区、瑜伽区
在规划布局时,先考量 Queen size 床铺尺度
并保有双廊道充足动线
才将剩余尺幅,保留给更衣室


在内阳台以高低差设计,形成为瑜伽练习区
设计线性灯带,形成悬浮的视觉美感
床背板亦延伸灯带柔光
与木质相衬着舒眠、温润之美



6. 更衣室设计:
女主人盼以 môn洞形式
利用衣柜深度,砌造拱形通道
並以灰玻璃围成通透、深润的更衣室
因为玻璃材在弯折的幅度有限制
便小心翼翼往外延展成一区

目光能从卧眠区穿梭入内
为使梳妆台面砌造于玻璃一側
仍保有净透、简约之美,桌面采取浮空手法
仅筑起立柱为支撑,并与吊衣区衣杆相间排列
成为最柔软的界线

7. 主卫浴设计:
主卫浴以四件式设备铺展,满足了饭店式功能
以一道玻璃拉门
划分为主卧与更衣区,从色系、尺寸、细节思量
为主人先行购买的面盆、马桶等设备
安装并规划为适宜动线

8. 次卫浴设计:
选以实木纹理为洗手台面
并以米白系佐木质感调为主轴
以干湿分离形式,使日常清洁更为便捷

看到这里还意犹未尽?别担心
更多精彩内容进入抖音号 “空间设计 ”
记得帮我点个关注+,以示鼓励,谢谢!
本网站的文章部分内容可能来源于网络,仅供大家学习与参考,如有侵权,请联系站长QQ18376601进行删除处理。

蜀ICP备2021014085号-4