140㎡法式中古风大横厅+长阳台,美出圈设计解析
2026.01.28 1 0
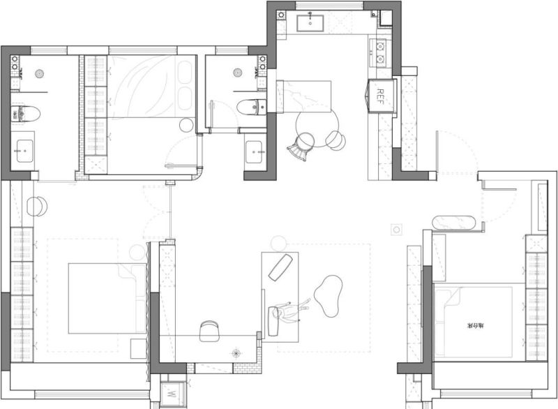
这套140㎡的住宅以法式中古风惊艳亮相,凭借大横厅与7米长阳台的奢阔尺度成为设计亮点,客厅打破传统布局,采用围合式沙发搭配复古雕花吊灯,营造优雅社交氛围;长阳台通过拱形门洞与藤编家具注入南法慵懒情调,全屋以奶油白为基底,穿插胡桃木色家具、黄铜灯具及弧形线条,在现代简约中复刻法式古典韵味,设计师巧妙运用双开门、玻璃砖等元素提升通透感,同时通过中古柜、艺术挂画打造沉浸式复古美学,实现实用性与艺术性的平衡,成就都市中的浪漫栖居范本。(约180字)
本案是一套面积140㎡的三居室,居住着一对追求品质与美感的年轻夫妻,女主人钟情于法式的优雅,男主人则希望拥有专属的游戏空间,于是为他们打造了这个兼具个性与功能的家。
在这个家里,每个角落都讲述着生活的故事——既有放松的惬意,也有专注的热爱。理想的家,就该如此温暖而生动。


01
玄 关
当复古地砖的地砖邂逅自然的洞石端景台,入户即展开空间仪式感的叙事。外置鞋柜于独立电梯厅,在功能和美学之间达成平衡。

靠近玄关的次卧改用玻璃隔断,既引入光线,拉上窗帘后也保证了私密性。往公区走,妙融入梁托与罗马柱元素,打造拱形顶面,搭配柔和的天际灯带,不仅呼应了业主的喜好,也完美修饰了原有管道。

02
客 厅
走进客厅,便能感受到中古风与现代元素的完美融合。浅米色的墙面搭配精致的法式线条,勾勒出空间的优雅轮廓。

鱼骨拼木地板通铺,暖白色墙面搭配复古质感的软装家具,散发出中古的怀旧与慵懒,氛围感十足~

黑色的直排花瓣沙发再加上玻璃茶几,更增添现代气息,斗笠悬浮吊灯从天花板垂下,为客厅洒下柔和的光线。


阳台与客厅连接处结构梁,采取了弧形角花过渡,以弱化低梁的存在感,电视墙根据生活习惯,没有特意的去做造型的处理,而是悬挂电视+一组USM模块柜作为电视柜,搭配屋主精心挑选的灯具与花瓶,营造出随性惬意的氛围。


03
阳 台
阳台打通后,阳光也成为空间松弛感的一部分,透过纱帘给家居蒙上一层柔和的光线,温暖又治愈;完将自然的光线和外部的景观释放出来,使室内空间显得格外的通透静逸。

同时也利用门垛的空间定制收纳柜+洗烘家政区,颜值与功能满分~
04
书 房
沙发后新建半扇墙体,分隔出一间开放式书房,墙上嵌入三块玻璃砖,为空间增添灵动光影。

定制L型办公桌,满足男业主日常办公与打游戏,以及孩子以后学习。书桌前打造窗洞形成框景,利用阳台绿植,在家搭建出一个小景。

书房统一色调木元素,收纳柜、窗框、隔板等,自然成为空间中的装饰,即保持了视觉的清爽,又营造出了中古的浓厚氛围。

05
餐 厨
餐厨打通,用一组岛台作为隔断,岛台与餐桌之间咬合设计,让餐厅可以灵活的根据用餐人数来决定布局,也给小厨房增加操作台面。

中古风的餐边柜与咖啡很配,透着浓郁的复古气息。材质上,胡桃木以骨骼线的造型增添空间线条感,搭配长条瓷砖、隔板,剥去材质的厚重感,增添一丝轻盈与松弛。

厨房虽不算宽敞,但功能齐全。且布局很合理,根据居者使用喜欢定制L型橱柜,并做高低台面,满足日常下厨所需。


生活,就是把平常日子过得闪闪发光。无论是晨起的咖啡、初冬的烤红薯,还是晚霞中的一碗热汤——这些温柔琐碎的瞬间,让生活有了温度,让平凡的日子,都成为幸福的回响。
06
主 卧
推开这扇精致的双开门,即是主卧。

水波纹灯盘、包豪斯蛋挞吊灯与定制波浪形床头木板相映成趣。光线透过罗马帘,在室内形成柔和渐变的光影,营造出温馨舒适的睡眠氛围。


床尾定制整墙衣柜,提升卧室的收纳力。并延伸悬空化妆台,利用抽屉的延伸,和高柜穿插设计。梳妆台上侧做深色吊柜,配感应灯带,让梳妆充满氛围感。


飘窗床尾一侧设置开放隔板展示架,打造一个富有艺术气息的安静角落。

07
次 卧
次卧目前作为多功能房使用,地台床+整墙柜体结合特色壁布,构成空间中有趣的背景装饰。飘窗台日后可铺设软垫,扩展为亲子互动区或临时客卧,灵活适应未来需求。



08
卫 生 间
主卫呈窄长形,采用镜柜增强收纳能力。淋浴区一侧墙面设计壁龛+亮丽的红色方砖,成为小空间中的视觉焦点,注入温暖与活力。

公卫洗手台外移,半墙设计+胡桃木悬空浴室柜,搭配造型简约有趣的门扇,复古感拉满。

· 说在后面 ·
一个家最好的样子,是人与空间相互滋养的关系。在这个融合了法式浪漫与中古质感的家里,用一扇拱门迎接仪式感,用一面玻璃砖引入流动的光,用一个窗框定格窗外的绿意,用一个角落安放热爱的游戏与阅读。
屋主对美的坚持、对生活的细腻期待,让这个家超越了视觉的呈现,成为真正可沉浸、可放松的精神栖居地。
本网站的文章部分内容可能来源于网络,仅供大家学习与参考,如有侵权,请联系站长QQ18376601进行删除处理。

蜀ICP备2021014085号-4