合肥铂悦天汇176㎡意式极简风实景装修设计案例
2026.01.22 1 0
合肥铂悦天汇176㎡意式极简风实景案例,以简约线条与高级质感诠释现代美学,设计采用开放式布局,融合天然石材、木质元素与哑光金属,营造低调奢华的氛围,客厅以灰白色调为基底,搭配模块化沙发与几何吊灯,凸显空间层次;餐厨一体设计通过岛台实现功能互动,嵌入式家电保持视觉整洁,主卧运用浅咖色护墙板与无主灯照明,打造静谧休憩空间,衣帽间采用玻璃柜门提升通透感,全屋智能系统与隐藏式收纳设计兼顾实用性与艺术性,展现"少即是多"的极简精髓。(约150字)
作品详情
✅「项目信息」
项目地址:合肥 • 铂悦天汇
项目面积:176㎡ • 大平层
项目风格:意式极简
设计施工:安徽华然装饰
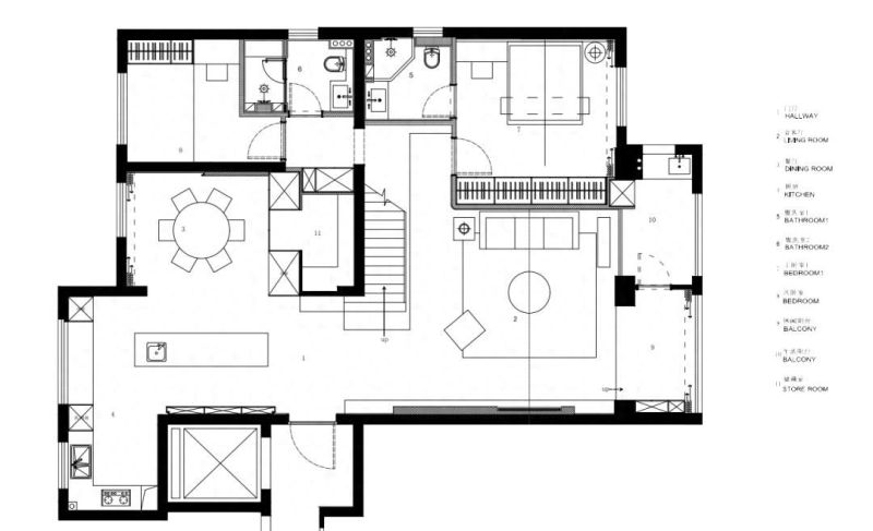
✅「功能布局」
◽ 拆除阳台,纳入客厅区域,增大活动空间
让客餐厅更加完整化,光线更加通透
◽ 客厅使用无主灯照明
保证层高的同时让大客厅的光线更加均匀
◽ 主卧设计床尾柜,增加储物空间
主卫缩小更多的空间留给衣柜
也避免床对卫生间的尴尬情况
✅「设计改造」
“根据业主的喜好,主风格设计为现代风,以原木色、黑色为主色调进行搭配,整体更加高级。”
⊙ 客厅
客厅阳台打通一体化设计 打造大横厅
整个空间无主灯设计 简单又不缺精致感
电视墙采用岩板+木格栅+木饰面结合
简约大气 有层次感








⊙ 餐厅
在餐厅选择餐桌岛台一体设计
美观的同时增加餐桌的储物空间
餐边柜也嵌入了蒸烤箱直饮机
合理利用空间的同时也能享受各种带来的便利



⊙ 主卧
主卧床尾做一整排衣柜真香了
收纳空间增加了 卧室空间也更敞亮了
还做了梳妆台的穿插
与床头颜色相呼应 功能与颜值完美结合



⊙ 主卫
精装改造的卫生间
选择暗藏式花洒
主体隐藏在墙内 大大节省浴室空间
超大顶喷带来超绝体验
看着浑然一体超级顺眼

⊙ 次卧
卧室+书房 功能二合一!
半面墙是衣柜 半面墙是书桌柜
书桌延伸至床头 搭配无床头储物床
结构和俄罗斯方块一样完美契合住了 空间立省



⊙ 书桌
利用转角空间延伸一个书桌
局部镂空可作为书柜使用
完美解决收纳学习需求

本网站的文章部分内容可能来源于网络,仅供大家学习与参考,如有侵权,请联系站长QQ18376601进行删除处理。

蜀ICP备2021014085号-4