134㎡现代奶油风装修案例,诸暨大唐·碧桂园温馨住宅
2026.01.08 1 0
【134㎡现代奶油风装修案例赏析】诸暨大唐·碧桂园这套住宅以温柔治愈的现代奶油风为基调,整体采用低饱和度的米白、浅咖为主色调,搭配弧形线条与哑光材质,营造出柔软温馨的居家氛围,客厅通过悬浮电视柜与云朵沙发实现轻盈感,餐厅定制岛台与亚克力餐椅形成虚实对比,主卧采用微水泥墙面搭配蓬松床品,衣帽间以玻璃柜门提升通透性,设计师巧妙运用隐藏式收纳系统,在134㎡空间内实现功能性与美学的平衡,局部点缀藤编、绿植等自然元素,为现代简约空间注入呼吸感,最终呈现出一个兼具颜值与实用性的理想居所。(注:实际摘要可根据具体案例细节调整补充)
客厅

客厅弥漫温馨的奶油色调
客餐厅一体化舒适度拉满

橙色沙发直接提升空间气质
黑白格地毯将各个单品串联

超大落地窗搭配梦幻帘
展现出浪漫唯美的氛围

拱形壁龛
地台内嵌灯带

电视背景墙通刷艺术漆干净舒适
超薄电视简约耐看,松弛感满满
餐厅

餐厅弥漫奶油香甜的滋味
玻璃推拉门更显通透大气

“冰糖葫芦”吊灯

玄关柜与餐边柜相互衔接
满足空间的收纳需求
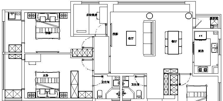
平面布置图

—— END ——
本网站的文章部分内容可能来源于网络,仅供大家学习与参考,如有侵权,请联系站长QQ18376601进行删除处理。

蜀ICP备2021014085号-4