89㎡奶油侘寂风小3居,北京老房变身质朴高级宅
2026.01.02 1 0
北京一套89㎡小三居通过奶油侘寂风实现惊艳改造,打造出质朴而高级的居住空间,设计师以微水泥墙面、浅木色地板奠定整体基调,搭配藤编、亚麻等天然材质,营造出静谧的侘寂美学,空间布局上巧妙采用开放式设计,将客厅、餐厅与厨房连通,视觉通透感倍增;弧形门洞与隐藏式收纳柜弱化小户型逼仄感,主卧延续低饱和度配色,定制地台床与悬浮梳妆台兼顾实用与艺术性,次卧通过榻榻米实现多功能利用,全屋无主灯设计搭配局部线性灯光,在简约中透露出细腻质感,完美诠释了“少即是多”的现代侘寂哲学。(198字)
刷到这套89㎡侘寂小宅的第一眼,脑子里蹦出的不是“高级”,而是“松了口气”——像加班到凌晨,突然有人递来一杯温豆浆,不惊艳,却能把人从钢筋水泥里拎出来。北京朝阳,精装房,俩互联网人,关键词一摆,就知道他们想要啥:不是炫富,是回血。
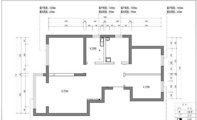
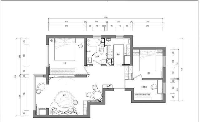
先说最狠的。原户型12个门洞,像一串被踢散的算盘珠,设计师手起刀落,砍成8个,顺便把次卧门平移1.2米,空出的厚度直接塞下三面柜:玄关吞鞋、衣柜吞换季、家政柜吞扫拖机器人,2.3倍收纳不是算出来的,是硬抢出来的空间。回字形动线把“绕路”变成“顺脚”,下班进门到沙发瘫倒,步数比以前少一半,外卖还没拆包,人已经先放松了。

5㎡卫生间才是偷面积的高阶玩家。借隔壁厨房12厘米,塞下1.3米坐泡浴缸——别笑,日本人泡半缸水也能唱完一整首《东京爱情故事》。折叠淋浴房往墙上一贴,干湿四分离,早上刷牙、洗澡、如厕三线并行,夫妻吵架频率直线下滑。设计师留了一句话:小面积不是敌人,是倒逼你抠细节的教练。

材料用得抠门又奢侈。西班牙微水泥连墙面带地面一次性抹平,480块一平米,听着肉疼,可住进去就知道:扫地机器人一路畅通,没有踢脚线积灰,猫毛一眼扫光,懒癌救星。藤编柜门是印尼来的,防潮涂层刷了三遍,北京黄梅天也能闻到雨后草地的味,不是香氛,是心理暗示:别急,日子可以糙一点。

照明像给房子做了一次“情绪按摩”。50%基础光交给智能调光,亮不刺眼;30%阅读光挂在意大利Flos的细胳膊上,加班改PPT也不觉得惨;剩下20%留给丹麦PH灯,灯罩像倒扣的飞碟,把光压到桌面以下,深夜开一盏,泡面都像深夜食堂的味。业主说,第一次觉得“回家”不是动词,是形容词。

最妙的是书房,两块移动板+一张折叠床,15分钟从二人世界切换到儿童房。设计师提前在吊顶里埋好婴儿监控的线,像给未来写了一张便签:别急,空间会陪你长大。北京小户型流行“生长型设计”,说人话就是:先满足单身狗,再兼容娃,省下换房的首付,足够让孩子从小学到中学一直上兴趣班。

别急着抄作业。微水泥裂缝、藤编起刺、调光系统闪屏,翻车贴一搜一堆。但这对夫妻想得开:侘寂不是完美,是允许掉漆。墙面那道运输刮痕,他们没补,拿粉笔写了一句“stay foolish”,像给生活留了个豁口,喘口气。

链家后台数据悄悄说,同小区没改造的89㎡挂牌价7万2,这套估价8万5,溢价15%。数字冷冰冰,但晚上十点,客厅只开那盏PH灯,微水泥地面映出一块暖黄的圆,像给北漂生活点了个“暂存”键——这15%的涨幅,不过是把“想逃”改成“想待”的折算。

本网站的文章部分内容可能来源于网络,仅供大家学习与参考,如有侵权,请联系站长QQ18376601进行删除处理。

蜀ICP备2021014085号-4