500㎡奶油轻法别墅,住进浪漫与烟火气交织的梦想家
2025.12.29 2 0
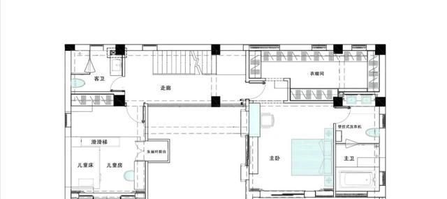
这套500㎡的上海奶油轻法别墅完美平衡了浪漫情调与生活烟火气,令人一见倾心,设计师以柔和的奶油色为基调,融入法式雕花线条、拱形门洞等经典元素,搭配现代简约家具,营造出优雅而不失松弛感的氛围,挑高客厅的落地窗引入自然光,开放式厨房与岛台满足中式烹饪需求,主卧套房配备独立衣帽间和观景浴缸,细节处可见藤编单品、艺术挂画等精致软装,庭院绿植与室内形成自然对话,屋主感叹:"既有仪式感又能踏实生活,连做梦都会笑醒!"(198字)
“花了两千多个日夜,就为把房子改成别人拍照打卡的背景板?”——别急,先别酸,看完再决定骂不骂。
上海这栋500㎡别墅,原户型就是“壕但无聊”的范本:挑空不够挑,地下室常年自带霉味滤镜,院子大却只会长草。屋主一句“我要全小区最靓”,夏天设计工作室直接掀屋顶:二楼楼板全打掉,7米挑高客厅一次到位,视线从地面飙到云端,邻居来串门第一句话全是“哇哦”。

奶油轻法风听着软萌,真落地全是硬核细节。墙顶统一刷成“低糖奶油”,色卡编号保密——怕隔壁照搬;拱门不是石膏泡沫,整面墙用轻钢龙骨弯出弧度,误差2毫米就敲掉重来;沙发、餐桌、楼梯扶手全做“无棱角”处理,圆滚滚的,小朋友跑酷也不担心磕成“表情包”。最骚的是布料:绒布、亚麻、超纤混着来,手指划过去像撸猫,观感软糯,坐下去屁股直接沦陷,谁还舍得走?

地下室原来只配当“恐怖片取景地”,设计师直接下挖1.2米,造出下沉式庭院,一面玻璃幕墙把阳光打包送进负一层。黄梅天再也不怕返潮,防水板+隐形排水沟双保险,暴雨天开着门吃火锅都稳。庭院里塞下烧烤台、户外沙发、小火锅插座,朋友周末来撸串,抬头是星空,低头是恒温酒窖,社恐都被治愈成社牛。

有人算过账:结构改造+全屋定制+智能系统,总价能再买套市区小三居。但屋主一句话把天聊死:“住得爽才是硬通货。”确实,豪宅易模仿,气场难复制。当别家还在拼大理石花纹时,这栋房子已经用奶油色和弧线把“松弛感”写进墙体。再贵的材料,也抵不过每天醒来那一口“啊,老子真会生活”的氧气感。

所以,别急着吐槽“有钱任性”。真正让人肾上腺素飙升的,是有人敢把日子过成理想模板,还顺手把理想做成样板间。你嫌折腾,他嫌不够折腾——这大概就是普通房子和“全小区最靓”之间,差的那两千多个日夜。

本网站的文章部分内容可能来源于网络,仅供大家学习与参考,如有侵权,请联系站长QQ18376601进行删除处理。

蜀ICP备2021014085号-4