60㎡日式原木风小家走红,小户型装修典范引热议
2025.11.24 3 0
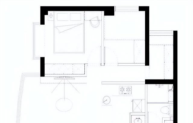
这套60㎡的日式原木风小家因巧妙装修走红网络,成为小户型设计范本,全屋以浅木色与白色为主调,搭配藤编、棉麻等天然材质,营造出温暖治愈的侘寂氛围,开放式布局串联起客餐厨空间,通铺木地板延伸视觉感;定制榻榻米兼作茶室与客房,折叠门设计灵活划分区域;墙面嵌入式收纳与悬浮家具让空间更显轻盈,设计师通过降低饱和度色彩、隐藏式储物和多功能家具,在有限面积中实现高颜值与强实用性,印证了日式风格对小户型的适配性,网友直呼"每一寸都用到极致"。
60㎡婚房被日式原木风救活,90后夫妻靠借10公分让全屋多出5㎡收纳,超六成小户型业主跟风选同款。
进门那一刻,玄关的拥堵感没了。鞋柜嵌进原本鸡肋的墙体,顺便把卫生间干湿区彻底拆开,洗手台移到走廊,早晚洗漱不再排队。厨房和餐厅打通后,灶台延伸成1.8米长岛台,备菜、吃饭、办公三合一,台面比大户型还宽裕。

客厅没放传统三件套,靠墙做20公分薄柜,隐藏投影幕布,用的时候降下来,茶几直接省了。阳台封进来铺地台,放一把藤编躺椅,白天晒太阳,晚上看星星,60㎡也能拥有度假感。

卧室面积不到10㎡,衣柜用纱帘代替推拉门,轨道省出15公分,拿衣服不磕床沿。床底做抽屉,换季被子往里塞,一年只开两次。床头留30公分窄缝,塞下20厘米深窄柜,纸巾、面膜、书全归位,台面永远空。

为什么日式原木风在小户型里屡战屡胜?颜色浅,光打上去会反射,房间自然亮;家具矮,视线往上抬,层高压根不是问题;板材选的是白橡木,木纹干净,比深色胡桃木少一半压抑感。

收纳逻辑也反套路,不是见墙就打柜子,而是先问:这个东西一年用几次?使用频率低于三次的全部藏深,高于三次的放在抬手就够的地方。厨房吊柜只做一排,地柜抽屉比隔板多,锅碗竖着放,抽出来一目了然。

很多人担心原木风显旧,其实木纹最怕油,台面选岩板,热锅直接端上去也不留印。地面用哑光橡木色地板,划痕看不出来,三年后再上一次木蜡油,颜色又能亮回来。

阳台另一侧塞进35公分超薄洗衣机柜,洗手池叠在上面,洗小件不用蹲马桶。上方做电动升降晾衣架,晒完衣服升到顶,客厅视线不被切割,60㎡也能跑完瑜伽垫。

预算方面,全屋软硬装加家电14万出头,柜子只做了38㎡,比同小区邻居少一半,却够用。秘诀在于先列物品清单,再反推算量,不留富余尺寸,每1㎡都提前在图纸上走三遍。

装修队最怕返工,这套房零拆除,水电原地微调,省下一笔砸墙费。厨房移位墙排燃气,提前报批,三天通过,没耽误工期。

家具全部网购,床、餐桌、书架选可拆卸结构,搬家螺丝刀十分钟搞定。沙发挑90公分窄扶手,靠窗放,留出过道还能塞下跑步机,疫情宅家也不长膘。

灯位布置也有讲究,无主灯不是越多越好,客厅四条磁吸轨道,一条照亮茶几,一条打亮木饰面,剩下两条留给绿植,光影层次瞬间出来。

小户型最忌一步到位,孩子还没影,次卧先空着,铺张地毯就是健身房。等真有娃,再把地毯换成榻榻米,1.2米书桌靠墙放,空间照样够。

房子小,生活不能小。两口子把每周三定为家庭清洁日,15分钟收完所有台面,垃圾随身带走,60㎡住出100㎡的清爽。

住进去第一年,朋友来家里都说像日剧场景,其实秘诀只有一条:先想生活场景,再倒推装修。每天在家走动的路线,就是动线;动线顺了,面积自然放大。

别再说等换了大房子再好好生活,真等大房子来了,审美、习惯、体力都变了,未必还有现在的心境。把手里这套小窝收拾舒服,才是当下最确定的幸福。
本网站的文章部分内容可能来源于网络,仅供大家学习与参考,如有侵权,请联系站长QQ18376601进行删除处理。

蜀ICP备2021014085号-4