新中式装修,雅致素简,一眼万年的永恒之美
2025.11.18 1 0
新中式风格凭借其雅致素简的韵味成为众多装修选择中的经典之选,相较于其他流行风格,它以低调的东方美学、沉稳的木质元素和留白意境,营造出“一眼万年”的 timeless 气质,无论是对称的布局、山水纹样的点缀,还是与现代功能的巧妙融合,都让空间既承载文化底蕴又不失实用性,这种删繁就简的设计哲学,恰好契合当代人对诗意栖居的向往,成为经久耐看的家居范本。(148字)
说真的,看房看多了,什么欧式美式北欧风都审美疲劳了,最后发现还是新中式最有味道。
不是那种老气横秋的红木配金色,而是真正懂生活的新中式,一眼就能看出主人的品味来,这种美啊,就像陈年老酒,越品越有意思。

今天要分享的这套房子,女主人是个湘妹子,特别有意思,平时爱穿旗袍,爱弹古琴,爱品茶,你说这样的人装出来的家能不美吗?
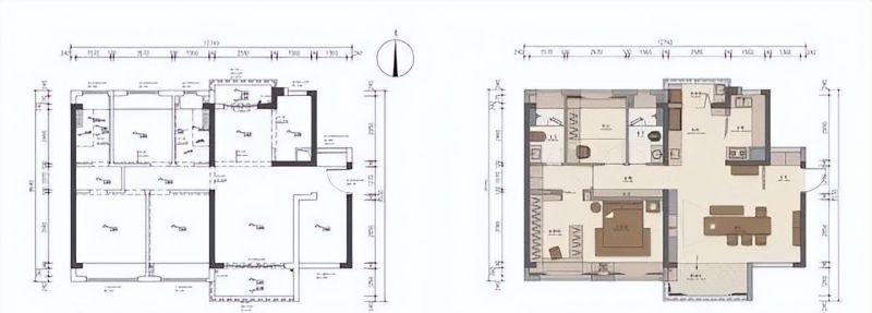
01 空间改造

这套房子套内98平,原来是四室,现在就她一个人住,空间肯定得重新规划啊,不然浪费了多可惜。
最大胆的改动就是把客厅旁边的客房打通了,这一下子客厅就宽敞多了,住一个人的话,客房确实用不上,还不如让公共空间更舒服一些。
阳台也被她抬高了,专门用来弹古琴,你想想,坐在那里弹琴品茶,外面绿植环绕,这日子过得多雅致?
还有个改动特别实用,把两间卧室合并成一个主卧套房,这样既有了充足的起居空间,又能满足各种收纳需求,特别是她那些旗袍,都需要专门的地方挂着。
02 玄关设计

一进门就能感受到主人的用心,左边是岭南风格的红砖纹样,开门就见"福"字,寓意真的很好,谁看了都觉得温馨。
右边还挖了个洞,能隐约看到室内的端景,这种设计真的很有趣味性,不会让人一进门就把所有的美景看光,而是留点悬念,吊足胃口。

右手边的鞋柜做得也很贴心,既实用又不破坏整体的美感,这种细节处理真的能看出设计师的功底。
03 客厅空间

这个客厅和传统客厅完全不一样,没有沙发电视的标配,而是放了一张大长桌,可以用来吃饭、品茶、读书,一桌多用,特别符合她的生活习惯。

整个空间摒弃了传统中式的厚重感,硬装很简约,但搭配的家具都很有质感,这种搭配方式真的很聪明,既有现代感又不失传统韵味。


靠墙的多功能柜设计得特别好,可以收纳茶叶和书籍,随时取用,这种生活方式真的让人羡慕,想喝茶就喝茶,想看书就看书,多自在啊?

配上一些绿植的点缀,整个空间就活了,每个角度看过去都有东方的神韵,在这样的环境里,人的心情都会变得平静下来。
04 阳台休闲区


抬高的阳台真的是个genius的设计,专门用来弹古琴,这种专属的音乐空间,想想就觉得美好,古琴的音符飘荡在微风中,配上墙上的字画,这氛围绝了。
还种了一些植物,有点枯山水的意思,为空间注入了生机,这种自然与文化的交融,真的很治愈人心。

从阳台往室内看,那种宁静祥和的感觉扑面而来,这就是新中式的魅力,不张扬但很有内涵。
05 厨房设计


西厨的使用频率很高,木色的柜体延续了整体的调性,清晰的木纹理很有质感,这种自然的美感真的很治愈。

中厨也很实用,操作动线设计得很合理,看得出主人是真的会做饭的,不是那种样子货。
06 走廊设计


走廊的设计真的让人惊艳,原本平淡的过道被改造成了苏州园林的感觉,灯光的点缀让整个空间都有了层次感,走在其中就像在画中游一样。
07 主卧套间

主卧的设计很巧妙,进门先是一个净次衣间,然后分别通向卫生间和休息区,这种功能分区真的很合理。



空间被柜子巧妙地隔开,一边是衣帽间,另一边是休息区,既保证了私密性又不会让空间显得拥挤。

衣帽间里挂满了各式各样的旗袍,真的像花海一样绚丽,这些旗袍和整个家的氛围太搭了,可以看出主人对传统文化的热爱。
08 次卧设计

备用卧室采用地台设计,平时可以打坐冥想,客人来了铺上床垫就是完整的卧室,这种一室多用的设计真的很实用。
09 卫生间

主卫的设计依然延续了温暖治愈的氛围,玻璃淋浴房实现干湿分离,既好看又实用,这种设计真的很走心。
看完这套房子,真的对新中式又多了几分喜爱,这种雅致素简的美,真的是一眼万年啊,你们觉得呢?
本网站的文章部分内容可能来源于网络,仅供大家学习与参考,如有侵权,请联系站长QQ18376601进行删除处理。

蜀ICP备2021014085号-4