188㎡极简之家,克制设计,盛放生活万象
2025.11.11 2 0
本案为188㎡现代极简住宅,设计师以"克制美学"为核心理念,通过化繁为简的设计手法,构建包容多元生活的空间容器,整体采用低饱和灰白主调,搭配天然木饰面与微水泥材质,营造静谧高级的质感,空间布局打破传统隔断,以开放式客餐厨一体化为核心,通过隐藏式收纳系统和嵌入式家电实现视觉极简;弧形转角与线性灯光弱化结构棱角,赋予空间流动韵律,主卧套间整合休憩、衣帽与卫浴功能,落地窗引入自然光影,在极简框架中暗藏人性化细节,全案通过材质对比、虚实光影和留白艺术,诠释了"少即是多"的现代生活哲学,让简约空间成为承载家庭情感与个性表达的永恒背景。
视频加载中...
本期要为大家分享一套188方现代极简风的案例。
作为强调形式极致简洁的一种风格,极简的精髓并不是“无”,而是“聚焦”,聚焦于一个核心命题,即如何以最克制的形式,去容纳生活百川。


本案将中性黑白灰作为贯穿全室的语言,不做任何多余装饰,仅以精细配比的线条和块面,描摹建筑本身的结构美。
极简设计并非是一种刻意追求“冰冷”的美学,而是希望通过形式的极致净化,为居者腾出广阔的精神之地。

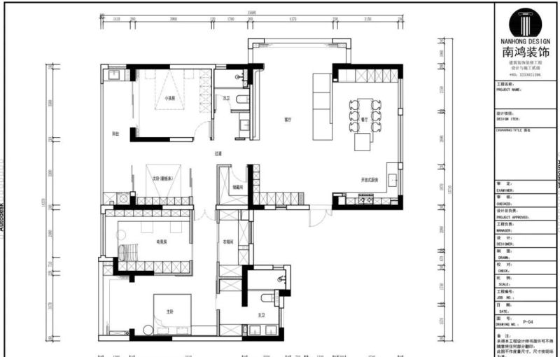
▲平面方案
实景赏析

推开家门,迎面而来清爽又轻盈的气息。宽敞公区域流动着纯粹的黑白灰韵律,基底的淡,恰是为了盛放日常的丰裕。光在纯净的白色主结构与深邃的黑灰调之间游走,打磨着瞬息万变的光影戏剧。


凝练的设计笔触,用极致通透而纯粹的格调,引导生活回归到宁静与放松。区域间取消隔断,客厅和餐厨场域互通,构建起动线流畅的一体化家庭核心区。



直爽的线条在空间墙、顶、地自如延展,彼此呼应。黑与灰的体块穿插于纯净的基底中,既建构层次,又将理性的伏笔埋下,材质与色彩就此凝塑为无声却鲜明的语言。


简洁的柜体采用无把手隐形设计,将所有杂物藏起,让空间保持整洁有序。悬挑、错位、穿插,精细又有艺术性的手法,使收纳区免于沉闷——柜体不再仅是储物的工具,更成为了墙面艺术构成的一部分。


深邃的黑灰塑出餐厨场域的整体轮廓,呈现低调又冷峻的视感。开放式格局令烹饪、用餐与起居自然相连,家人在此聊天、欢笑,让理性的空间浸润生活的温情。



黑色岩板岛台与餐桌一体成型,搭配经典潘通椅的曲线,空间在刚与柔之间找到精妙的平衡,流露出潮奢韵味。嵌入式家电维持视觉的极致简洁,隐藏式收纳系统将日常琐碎巧妙归置,只留下高级的秩序感。

顶部将梁包裹出白色的弧面,适度的曲线设计,为空间增添了柔和。


主卧包含衣帽间、主卫以及电竞房多个功能场景,高效串联日常起居、休闲、娱乐的动线。素白的空间,缀以纯粹的黑与灰,在克制中释放极简的高级美学。

纯白色的背景上,一道黑色直线横贯,塑出锋利的空间维度。黑白交织,鲜明的反差中诞生出一种冷静而前卫的主张。




这是为喜爱游戏的业主量身定制的电竞房,墙顶嵌入氛围灯光,可随时转换、搭配不同种颜色,潮流科技感拉满,也为私人休闲时刻带来超强沉浸体验!


公卫布局干湿分离,配合分体式台盆,划开一方纯净有序的洗沐空间。流畅的动线与精简的设计笔触相辅相成,将日常所需的功能,优雅地隐于无形。
P.I. 项目信息
项目名称:皋亭铭苑
设计风格:现代极简
项目类型:四室两厅
项目地点:中国·杭州
项目面积:188㎡
项目服务:设计·施工·硬装·软装 全案设计
设计单位:浙江南鸿装饰
施工单位:浙江南鸿装饰
END
本网站的文章部分内容可能来源于网络,仅供大家学习与参考,如有侵权,请联系站长QQ18376601进行删除处理。

蜀ICP备2021014085号-4