新中式自建房设计,东方雅致与现代生活的完美融合
2025.10.15 2 0
新中式自建房以现代手法重构东方美学,将传统元素巧妙融入当代生活,设计上采用对称布局与留白艺术,搭配原木色家具与水墨纹样软装,营造出"简而不凡"的意境,落地窗引入自然光影,与镂空屏风形成虚实互动;庭院中竹石造景与防腐木平台相映成趣,实现"一步一景"的园林情趣,室内外通过月亮门、回形纹金属隔断实现传统符号的现代转译,既保留飞檐、格栅等建筑语汇,又契合现代居住功能,这种设计以文化自信为基底,用当代材质演绎古典韵味,让茶室、书房等空间成为安放精神的家园,达成"外显礼仪之风,内蕴哲思之美"的居住理想。(198字)
深耕家装设计多年,我对宋氏美学与新中式风格有着极致追求~这次带来的自建房室内设计,更是把 “宋韵雅致” 与 “新中式的现代东方美” 狠狠拿捏!从空间布局到细节雕琢,都藏着我对传统美学与当代生活融合的思考。

设计简介:
装修风格:新中式风格
实际面积:400+㎡
空间格局:自建房
设计师:鲁宾设计
项目位置:湖南长沙市长沙县
装修造价:预算900/㎡
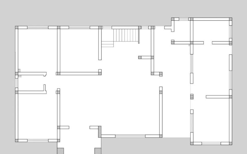
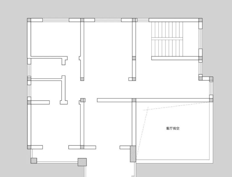
- 户型图


先看第一张,整体空间布局很规整,不同区域划分清晰,能看到楼梯等结构,为后续打造温馨又实用的家打下基础。再看第二张,“客厅挑空” 的设计太亮眼啦,这意味着可以拥有开阔的视觉感与通透感,后期装修能把客厅打造得超有格调,不管是休闲娱乐还是招待客人,都倍儿有面儿。
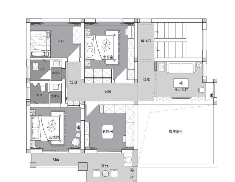
- 平面图


一层布局超实用,有堂屋、客厅,还有厨房、餐厅,满足日常起居和待客需求。多功能房能灵活变化,不管是当作书房还是兴趣空间都很合适。长辈房、次卧设计贴心,公卫、洗漱间布局合理,方便使用。
二层更注重居住的舒适与个性,主卧室、女孩房、次卧,各自有独立空间,私卫、公卫、洗漱间,让生活更便利。多功能厅可以尽情发挥创意,改成影音室或者休闲区都超棒。还有客厅挑空设计,视觉上特别开阔,阳台、露台更是休闲放松的好地方,养花、喝茶,想想就很惬意。
- 入户



一进门,就被这雅致的氛围拿捏住!线条简洁的吊顶,搭配柔和灯光,瞬间拉满格调。定制柜体超实用,收纳力 max,还巧妙嵌入展示区,摆上小摆件、书籍,很有韵味。
墙面的中式元素装饰,像那带有花鸟的造型和书法挂轴,一下子就把东方美学拉满。还有精致的水族箱,灵动的水与绿植,让空间更有生机。
- 客厅




一走进这个客厅,就被满满的东方韵味包裹住!挑高的空间搭配精致的吊顶,灯光柔和又有层次。大理石电视背景墙大气高级,两侧的木质元素与中式壁灯,瞬间把传统韵味拉满。
家具选的是简约又有质感的新中式款式,沙发柔软舒适,搭配木质茶几,还有别致的小凳,细节处都透着雅致。一旁的茶区太有感觉了,闲暇时泡上一壶茶,在这一方小天地里,静静感受慢时光,超治愈。
- 品茶区



一踏入这个区域,满满的中式雅致感就扑面而来!木质茶桌质感超棒,搭配简约的座椅,线条流畅又有韵味。旁边的收纳柜设计超用心,不仅能整齐摆放各类茶叶、茶具,还成了展示区,琳琅满目的茶品,看着就很有氛围~
墙面的装饰也很有巧思,独特造型的挂饰、“茶悟” 书法挂轴,把茶文化的意境拉满。柔和的吊灯打下暖光,再配上几株绿植点缀,整个空间静谧又舒适,太适合约上好友,泡上一壶好茶,慢慢品味,享受悠闲时光。
- 餐厅



一走进这个餐厅,就被满满的雅致感包围!圆形餐桌搭配简约又有质感的餐椅,线条流畅,透着中式的韵味。上方的吊灯造型独特,灯光柔和,为用餐营造出温馨的氛围。
墙面挂着一幅带有书法和景致的装饰画,一下子就把东方美学拉满。旁边的收纳柜设计超赞,不仅能收纳餐具等物品,还能展示一些小摆件,实用又美观。
- 主卧室




一走进这个卧室,就被满满的静谧雅致感包裹!床头背景墙的木质元素与柔和的灯光结合,温馨又有格调。床上的床品质感超棒,搭配几个抱枕,简约又舒适。
墙面那幅山水装饰画太吸睛啦,一下子就把中式的意境拉满。两侧的床头柜实用又美观,摆上小摆件和书籍,很有生活气息。大窗户让自然光线充足地照进来,配上轻柔的窗帘,整个空间明亮又通透。
- 多功能空间


木质桌椅透着中式的沉稳,搭配简约的沙发,不管是约上好友来场棋牌对决,还是静静坐着放松,都超合适~
墙面的装饰画色彩清新,为空间增添了艺术氛围。柔和的灯光从吊灯、落地灯洒下,营造出温馨的氛围。还有那复古的壁炉和电视柜,让空间多了份复古与实用的结合,闲暇时看看电视,超惬意。
- 二层过道


走在这条过道上,满满的中式雅致感扑面而来!简约的吊顶搭配嵌入式灯光,柔和又有层次。一侧的柜体设计超用心,不仅能收纳,还留出展示区,摆上茶具、绿植,瞬间有了生活的小情趣。
- 二层书房



中式屏风太有韵味了,上面的花鸟图案,把东方美学拉满,既划分了空间,又增添了艺术氛围。
简约的沙发搭配木质小凳、茶几,不管是看书、喝茶,还是和朋友聊聊天,都超舒适。一旁的书桌区域,光线充足,书架上整齐摆放着书籍,还有小摆件点缀,实用又有格调。
- 女孩房



木质元素的运用,让空间透着自然与温暖,搭配柔和的色调,超治愈~
床品简约又舒适,床头那幅花鸟装饰画,把中式的灵动与柔美展现得淋漓尽致。一侧的柜体实用又美观,能把衣物等物品收纳得妥妥当当。还有那把休闲椅,闲暇时坐在上面看看书、发发呆,超惬意。
- 女孩房衣帽间


一走进这个衣帽间,就被满满的精致感和收纳力惊艳到!整体色调柔和雅致,很有新中式的韵味~定制的柜体设计超用心,不仅能把衣物、配饰等整齐收纳,还设置了展示区,那些可爱的潮玩摆件、精致的饰品,都能妥妥展示出来,超有少女心。
本网站的文章部分内容可能来源于网络,仅供大家学习与参考,如有侵权,请联系站长QQ18376601进行删除处理。

蜀ICP备2021014085号-4