新中式风格,永不过时的禅意装修经典
2025.09.29 3 0
新中式风格凭借其永恒的美学价值与禅意氛围,成为经久不衰的经典装修选择,这种设计巧妙融合传统中式元素与现代简约理念,通过木质家具、水墨装饰、镂空屏风等细节,营造出宁静雅致的空间气质,其核心在于"留白"艺术与自然材质的运用,既保留东方文化的含蓄内敛,又符合当代生活对实用性的需求,无论是对称布局的厅堂、禅意茶室,还是点缀其间的绿植与瓷器,都传递着"天人合一"的哲学思想,相比浮夸的装饰,新中式更追求精神层面的返璞归真,让居者在快节奏生活中找到诗意栖居的平衡,成为都市人向往的心灵栖息地。(198字)
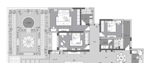
150㎡砸下去,最怕住成“爸妈的样板间”——好看却天天蹲地上找遥控器,冬天庭院成冷库,衣柜深到能藏人却永远翻不到外套。

河南刚交付的这套新中式,上周偷偷把预算往上抬了15%,结果现场业主直接看呆:灯自己认识太阳,画自己会换季,连竹子地板都能把甲醛锁进保险箱。

先说灯。
以前新中式就是一排黄铜吊灯,亮到脸蜡黄。
现在吊顶里塞了条“假天窗”,根据郑州经纬度算日光轨迹,早上冷白、下午暖黄、夜里直接切到烛光模式。

手机不用掏,人走到哪亮到哪,长辈来拜年都以为开了挂。
客厅那面山水墙更贼。
远看是整幅水墨,近看没墨——是块4K电子屏,200多幅真迹版权躺在硬盘里。

今天挂八大山人,明天换宋徽宗,按节气自动切,惊蛰桃花一开,屏幕秒变桃林。
邻居串门以为我天天换真迹,其实就动动手指。
庭院才是隐藏彩蛋。

原来防腐木+石灯,一年只能用三季。
现在顶上装了伸缩雨棚,轨道藏在木梁里,下雨自动合,晴天一键收。
地面走水暖,腊月也能赤脚踩。

上周零下六度,同事在我家院里煮茶拍视频,抖音定位“海南”。
材料也偷偷升级。
地板换成竹木复合,甲醛报告0.03,比苹果还低。

纹路像鸡翅木,踩上去带弹性,娃的塑料小车跑过没噪音。
墙面矿物涂料,蹭脏拿橡皮一擦,阿姨省掉清洁剂钱。
衣帽间更离谱。

传统顶天立地大柜,深处衣服永远失踪。
现在装电动旋转架,按季分区,按件编号。
西装转到你面前,像商场橱窗。

底部还有除湿格,梅雨季自动抽湿,羊绒衫不再长蘑菇。
整套做下来,硬装没多占一厘米,却把“中式面子”和“现代懒”全照顾到。
长辈看见木格栅还在,觉得韵味没丢;年轻人摸到隐藏灯带、语音窗帘,秒懂这是“装了私服”的中式。

房子想保值,别只拼红木吨数,得让木头里长芯片。
新中式不是穿长袍马褂,而是把生活调到最舒服的频道,再包一层东方滤镜——外表云淡风轻,里头全是黑科技。
本网站的文章部分内容可能来源于网络,仅供大家学习与参考,如有侵权,请联系站长QQ18376601进行删除处理。

蜀ICP备2021014085号-4