纯净至臻,原木极简风诠释生活本真之美
2025.09.28 3 0
这篇今日头条文章介绍了一种极致纯净的原木极简风格,将其誉为"宝藏级"设计美学,通过返璞归真的原木材质与留白艺术,打造出温暖自然又不失高级感的居住空间,设计师摒弃多余装饰,仅以木材原始纹理、几何线条和光影变化构筑空间层次,实现"少即是多"的美学理念,这种风格强调功能与美学的平衡,通过隐藏式收纳和天然材质肌理,在极简中透露出质朴的生命力,为都市人提供了一处回归本真的精神栖息地。(148字)
设计 / 品质 / 生活
Temperature of Love
屋主是一对年轻的新婚夫妇,常住两口人,所以设计重点放在对公共空间的开放和交流上。两个人对设计的需求是希望空间呈现出温馨的氛围,极简有温度。
设计师将现代简约与原木的设计结合在一起,在原木的基础上选用白色和浅灰色作为点缀,营造出一个干练而高级的空间感,呈现出自然宁静的风韵。混灰色的墙面,惬意又温馨。
▶以原木风为主,进行整体风格搭配;
▶直线条,整洁,水泥灰;
▶动线要舒适要流畅;
▶主色调不超过三种,避免过多的颜色。

◈入户第一眼设计入户玄关柜,温润质感的原木与白色相结合,质感飙升,入门便给人一种清新、自然、放松的视觉感。
玄关柜底部留空,让柜体变得轻盈不压抑,还可以收纳日常拖鞋和扫地机器人,搭配上线性灯带,惊艳又丰富空间。
◈柜体双侧中间部位留空,方便日常出入时置物。柜体部分可收纳衣物,时尚与收纳功能兼具。

◈进门入户,原木色的地板,鞋帽柜,以及餐桌椅,满满的高级感,清新自然,简单大方。

◈客厅电视背景墙的设计通透又增显空间。由于考虑到空间的功能性,在整面墙都做的通顶收纳柜,色彩上选择白色和原木色结合,经典的色彩搭配,由于整体家装风格保持一致。

◈无主灯设计,呈现出轻松而流畅的空间之美,在素雅而细腻的色调中,展现出现代极简的舒适与惬意。

◈大飘窗+灰色布艺沙发,采光通透,搭配上百叶帘的设计,简直了,闲暇之余躺在沙发上慵懒的享受下午茶时光,是多么惬意。

◈将阳台规划一小片区域,做成阳台抬高设计,达到随时可席地而坐的效果,作为休闲阅读的空间再合适不过了,考虑到阳台空间的采光效果不错,搭配上百叶帘的设计,可以随时调节光线的强弱,还给空间增加不少美感。

◈餐厨区装修为开放式设计,厨房与餐厅相连,利用地板与地砖拼接式划分界限,又方便清理。厨房布局采用多功能的L型设计,冰箱、小家电内嵌定制柜内,扩大收纳的地方。

◈原木风的餐厅满满的温馨感和高级感。

◈客餐厅之间延用同一色系来保持统一,造型简约的餐桌椅沉稳而高级,柔和的灯光洒下来,让用餐更具情调感。

◈原木色的成套餐桌椅,高端大气,使整个客餐厅搭配的很和谐自然。

◈考虑到洗涤区域在入户门处,于是在洗涤区域和厨房区域中间设计吧台作为一过渡,为了避免油烟进入公共区域,在吧台与厨房区域设计玻璃推拉门,不占用空间的同时,还能达到一定的美观度和空间的通透性。

◈主卧空间不是很大,以原木色为主,做了整体的定制衣柜,增加储物空间,营造了一个温馨舒适的环境。

◈在窗帘的选择上,以白色和原木色搭配,处处彰显设计感,卧室是休息的地方,暖色系的主灯,使人拥有一个良好的睡眠,放松空间。飘窗作为空间一大亮点,全面承接自然光的洒落,应和着窗外的景致方可度过慵懒下午。

◈次卧的地面采用原木色的复合地板铺装与家具的色调和谐统一,使整个空间看上去温馨和谐。
◈床头柜的原木小书桌别具一格,可以在此学习办公两不误。

◈阳台休闲区的设计采用原木和微水泥拼接,让线条感游走在空间,搭配上线性灯带,让原本平淡的阳台区域也能成为空间亮点,以原木的质感,温暖空间。

◈储物间很宽大,可以收放很多生活物品,将收纳做到了极尽。

◈卫生间采用干湿分离设计,空间除了必要的功能外,没有多余的装饰配件,整体也不会显得拥挤。隐形的镜柜,储物空间满满,洗手台柜体底部悬空,方便空间的清洁和使用。

◈干净整洁的客餐厅,满眼的原木色风格,客餐厅之间延用同一色系来保持统一,造型简约的餐桌椅沉稳而高级,柔和的灯光洒下来,让用餐更具情调感。

原始结构图
◈房子坐标北京海淀万柳,两居户型,二手房;
◈室内南北通透,光线充足,客厅空间足够大,层高2.8米;
◈内部空间比例协调;
◈南北交接处,有两处过梁,东西一处过梁;
◈暖气温度充足,
◈客餐厅一体。

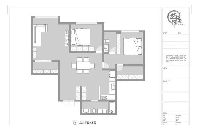
平面布置图
◈对开超大入户门;
◈进门右边为鞋帽柜,中间空体放进出门随手小物件;
◈主卧由储藏间+卫生间+卧室组合而成;
◈家具颜色以木色与浅灰混搭;
◈客餐厅一体;
◈定制家具基本以到顶为主;
◈整体动线以客厅为汇集点,往四周延展。
◈色彩运用的7:3配比手法,以暖色调为主冷色调为辅。
设计师的更多作品,
欢迎进入下方小程序查看哦~


本网站的文章部分内容可能来源于网络,仅供大家学习与参考,如有侵权,请联系站长QQ18376601进行删除处理。

蜀ICP备2021014085号-4