极简风装修遭全家反对,完工后却获一致夸赞
2025.09.24 3 0
一位屋主不顾全家人的反对,坚持采用"极简风格"装修新房,最终效果让家人态度大反转,装修过程中,家人担心极简风会显得单调冷清,但屋主通过留白设计、隐藏式收纳和低饱和度配色,打造出通透而富有层次感的空间,完工后,纯净的基底搭配木质元素与绿植点缀,既保留了极简美学,又营造出温馨氛围,开放式布局让采光最大化,多功能家具兼顾实用与美观,颠覆了家人对"简陋"的担忧,最终呈现的简约不简单、清爽不乏味的居住体验,赢得全家一致夸赞,证明极简设计也能完美契合生活需求。(198字)
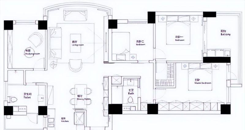
装修这事儿,真是越活越明白——以前觉得要装得“有排面”,现在才懂,住得舒服比什么都强。就像我家那套150㎡的四房,当初坚持极简风的时候,全家都反对:媳妇说我赶时髦不实用,爸妈觉得“柜子多才是好”。结果装完没一个不夸的,连平时最嫌我“瞎折腾”的老妈,都逢人说“我家这房子看着空,其实能装得很”。
其实极简不是“啥都没有”,是把所有东西都“藏”在看不见的地方。

比如入户右边的鞋柜,直接连到电视墙做顶天立地柜,柜门用最小的拉手,看着像护墙板,打开全是能塞鞋子、杂物的地方;餐厅和鞋柜之间用木色分隔,既挡了视线又多了展示区,一点都不压抑。
还有客厅没放电视,换成投影幕布藏在吊顶里,平时看不见,想看电影拉下来就行,整块墙做悬空展示柜,中间摆装饰,周围带柜门装杂物,比电视柜实用十倍。

最让家人服气的是收纳——走廊的谷仓门不占空间,旁边的米色柜子、底部的弹簧门收纳柜,连玄关过道的边角都没放过;厨房做L型橱柜,塞下冰箱还不挤;公卫的镜柜能装护肤品,浴室柜用人造石台面,虽然没做台下盆有点后悔,但清洁起来也没麻烦到哪去;主卧对面整面墙的收纳柜,中间留空放电视,睡前看看不影响家人;生活阳台放洗衣机,晾衣服直接拉出来就行,比放卫生间方便多了。
还有那些小细节,才是极简风的“小心机”:厨房推拉门选最细的边框,既隔油烟又透光,看着就清爽;走廊用原木色谷仓门,不占空间还显时尚;主卧背景墙用一条木色造型装壁灯,不用复杂的吊顶,四角装筒灯就很温馨;连公卫的淋浴帘都是伸缩式的,不用的时候拉上去,一点都不占地方。

以前总觉得“装修要复杂才高级”,现在才懂,极简是“把钱花在刀刃上”——不用多余的线条,不用花里胡哨的装饰,每一寸空间都用得好看又实用。家人一开始反对,不就是怕“极简等于没地方装”?
结果装完才发现,比那些堆满柜子的房子还能装,而且看着还不挤得慌。

你说装修图啥?
不就是每天回家推开门,没有多余的东西挡眼,想找的东西一翻就能找到,坐在沙发上看看投影,或者在阳台晾衣服,连空气都跟着清爽。

是不是很多人跟我一样,以前追求“有面子”,现在才明白,住得舒服才是真的“有远见”?
其实装修哪有什么“标准答案”,自己住得爽才是最实在的。就像我家这极简风,没有欧式的复杂线条,没有美式的厚重家具,却让每一个来家里的人都说“看着就想多坐会儿”。你要是正准备装修,真的可以试试极简风——不是省材料,是把每一寸空间都用得“刚刚好”,装完你会发现,原来“简单”才是最奢侈的舒服。







本网站的文章部分内容可能来源于网络,仅供大家学习与参考,如有侵权,请联系站长QQ18376601进行删除处理。

蜀ICP备2021014085号-4