看完这三套日式装修案例,轻松掌握设计技巧
2025.09.21 3 0
日式装修风格以简约、自然、实用为核心,三套案例展示了不同空间的设计要点,第一套案例采用原木色家具与白色墙面搭配,营造清新禅意;第二套通过榻榻米、推拉门等元素最大化利用小户型空间;第三套则融入现代元素,如隐藏式收纳和智能家居,兼顾美观与功能性,关键设计技巧包括:选用天然材质(棉麻、竹木)、保持空间留白、注重收纳系统规划,以及通过绿植和暖光营造温馨氛围,案例证明,日式风格既能满足都市人对宁静生活的向往,又能通过模块化设计适应不同户型需求,实现"小而美"的居住体验。
现在日式风格在家装的应用,越来越广泛,越来越受欢迎,原木的主色调,给人自然的亲近~
01 75㎡两居室日式风格
说在前面
项目位于上海青浦旭辉百合公馆,建筑面积85㎡,户型为2室2厅1卫。屋主是一对年轻的小夫妻,父母偶尔过来小住,喜欢非常温馨的色调,需要足够多的储物空间,又不会显得整个空间凌乱,因此设计师将整体风格定位于现代日式,以白色跟原木色系为主,从功能跟风格上去满足屋主的需求。
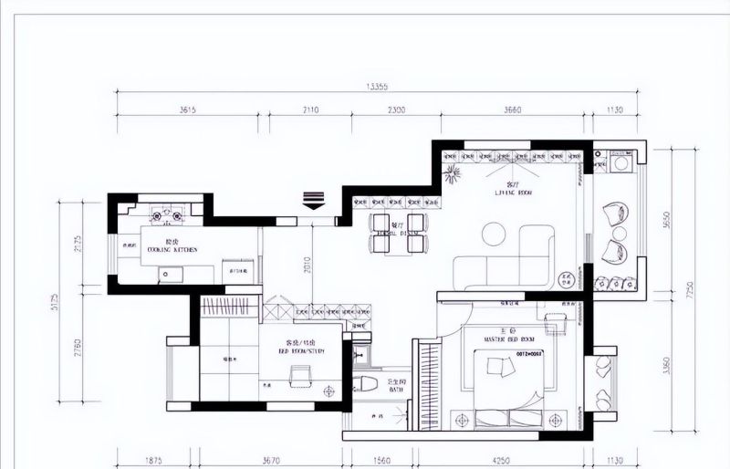
户型图

1.玄关区域空间狭小,鞋柜没有空间放置。2.餐厅空间不足,过道受到影响。

根据屋主的生活习惯和我们对空间整体格局的要求,在整体上进行了如下优化:1.将玄关处的墙体打掉,借用部分客卧的空间,增大玄关区域,同时增加玄关柜,实现玄关,鞋柜等多种功能。2.卫生间洗手区外移,做干湿分离,更加干净,方便。3.客厅做一整排储物柜内嵌电视,增加收纳空间。4.餐厅借用部分主卧的空间,保证餐厅的完整性。
玄关

本案的玄关柜同时结合了玄关柜,鞋柜,客房房间门等多种功能。哑光材质+无把手造型,让整体感觉干净利落,原木色抽屉搭配挂画设计则避免了单调。

厨房区域采用了长虹玻璃移门,透光不透影的特质,既保证了玄关区域的采光,又不影响整体美观。

客厅

客厅做了一整排储物柜,极大地满足了屋主的收纳需求,哑光材质+无把手造型与玄关统一,整体简约和谐,下方暗藏的灯带是一抹亮点,原木色饰面板+格栅更是为客厅添加了一份温润质感,加上无主灯的光源设计将客厅打造出温馨的,舒适的,让人极度放松的氛围。

客厅采用无主灯设计,白色光源筒灯,满足照明需求,白色筒灯是冷色调,因此,沙发上面,做了暖色系内嵌灯带,给整个空间,增加暖色光源,让整个空间更加温馨。

客厅电视墙面做了整体定制柜,增加储存空间。最下面是做了一个原木系列的地台,可以放置一些工艺品,或者放一些遥控器等等小物品。

布艺浅灰色沙发,柔软舒适,看似简单的茶几,储物功能强大到你无法想象。

浅灰色布艺沙发,一整排白色哑光烤漆柜门暗藏灯带,原木色木饰面护墙板,色调温暖舒适。

客厅开灯效果图展示。


因为入住比较早,除甲醛的机器必不可少。

大屏幕索尼电视机,在家也能有很好的观影体验。
厨房

厨房做了U字型台面,增加了厨房的整体收纳空间,原木色下柜+白色吊柜的组合,让厨房整体的色系更加温馨,同时避免了呆板单调,方格子的小白砖更是提升了整体空间的灵动性,让整体更加有层次感。

下柜采用了原木色门板,上柜是原木色柜体加白色门板,与厨房整体色调相融合,黑色油烟机嵌入其中,整个色调非常有层次感。#油烟机#黑色美缝剂
餐厅

用餐区域通过设计师的调整,借用了主卧跟客卧的空间,完整了餐厅区域,一张原木色餐桌,搭配浅灰色餐椅,在绿植跟吊灯的配合下,协调出一种居家舒适的慵懒感。

餐桌没有选择很大的,四人位餐桌,对于业主一家来说,足够用了,这样满足就餐需求的同时,不会占用太大的活动空间。

这是餐厅开灯效果,简约的造型,让生活回归了本真的惬意。

灯光不直射在餐桌上,通过上方的反光板,折射照明,避免了业主抬头看去,会刺眼,弧形的反光板,让整个光线笼罩得更加均匀。


餐桌和餐椅是一套的,客户特地挑选的原木系列,家里有小朋友,因此餐桌和餐椅的选择上,都是精挑细选的,都是做了圆角的处理,这样避免磕碰受伤的情况。

美丽的纹理,细腻优美的线条,表面光滑平整,在这样的餐桌上用餐,也是特别幸福的。
卫生间

卫生间也是用了长虹玻璃门,有效保护隐私的同时,也不影响里面的光线。

卫生间内部,使用了长条形小白砖,黑色美缝剂,延续厨房黑白搭配的效果,里面的洁具也都是选择的黑色,黑白分明,地面则用了灰色防滑地砖。

业主买了一个活动的晾衣架,可以用来放毛巾以及挂换洗衣物,这样让卫生间的效果更加有效地展示出来。
卧室

屋主很喜欢在卧室看投影,在光源上我们做了两种处理,床背跟顶面做了灯带,营造出观影的氛围,由于位于二楼,卧室的采光收到部分影响,同时加了吸顶灯,增强照明亮度,床品,窗帘没有过度花哨的装饰,整体简约舒适。

这是主卧开灯效果。

书桌和床是整体定制的,同色系,整体感非常好。榻榻米下方拥有非常大的储物空间,平时换季衣物被子,都可以放在里面收纳,床头做了镂空,平时可以放手机,书等一些小物件,也是替代了床头柜的功能。

床头柜子做了推拉门,有效节省位置,平时拿取物品也是很方便。
02 90㎡一居室日式风格
地区:宁波 面积:90㎡
概算:18万 风格:日式
风格简约为主,暖色调地面墙面及软装搭配,点缀黑色软装配饰,整体打造温暖舒适的居住环境。

▲原始结构图
户型解析:
业主希望尽可能地增大居住环境,此方案区分三大功能区域,拆除原所有不必要的墙体,由于层高过低及客户不喜欢造型吊顶本方案吊顶均以裸顶明装灯具为主。

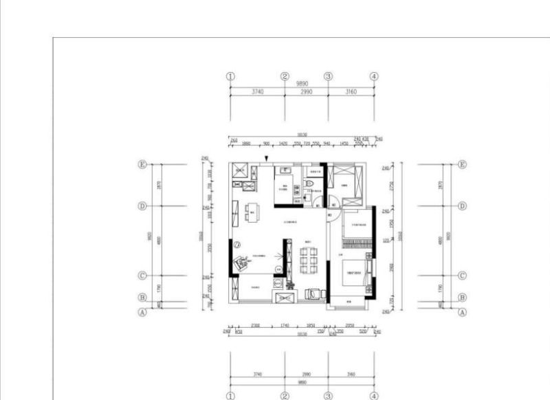
▲微平面布局方案设计图
设计解析:
业主独自居住,养猫。
1:客餐厅最大可能做到空旷,配合成品活动家具营造居住环境及效果。
2:阳台以工作阳台为主配备洗衣机,工具柜,及伸缩晾衣杆,满足日常需求。
3:阅读区搭配原木色书架,原木色书桌,休闲躺椅等营造一个舒适放松的休闲区域。
4:主卧衣帽间内卫,整体做一个套间,区分外部空间形成一个相对私密的私人空间。
客餐厅


客餐厅以原木为配色,营造整体温馨感,黑色软装点缀活跃整体空间,电视背景留白作投影区,开放式厨房结合餐厅成品餐边柜,冰箱,餐桌等营造整体就餐环境。
阅读区

配合原木色书柜及书桌营造出整体安静柔和的阅读空间。
卧室

墙面整体暖白色,明装三色四头筒灯,地面原木色实木地板,营造舒适的休息环境。
03 45㎡一居室日式风格
地区:上海 面积:45 ㎡
户型:1室1厨1卫 风格:日式
概算:12万 (设计+硬装)

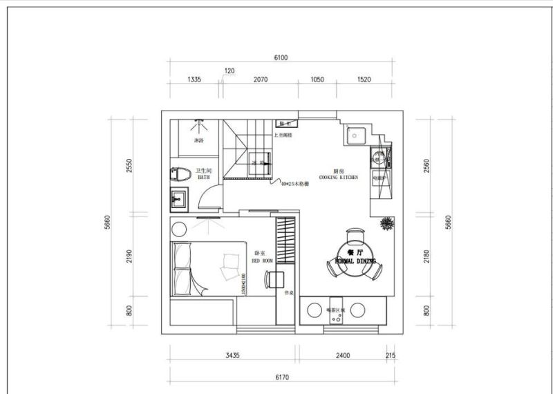
▲平面布局设计方案
户型解析:
缺点:小户型的精致房,空间感小,储物空间少。
设计解析:
房子主要是业主的父母旅游的时候偶尔过来小住。
1:小面积户型,空间感比较压抑,所以直接打掉入户门口的鞋柜跟厨房的墙体,增加空间感。
2:客厅层高只有2米,空间感压抑,所以同时把客厅的楼板打掉,客厅做挑空客厅,增加整体的空间感。
客餐厅

楼梯处用木格栅做隔断,增强整体的通透感,原木色的餐桌搭配浅灰色布艺餐椅,色调明亮温馨。
卧室

卧室电视方向整组的白色衣帽柜搭配原木色的书桌,浅米色的乳胶漆墙面,搭配复古的木质小吊灯,质感舒适精致。
休息区

浅米色的布艺单人休闲椅,搭配落地灯,色调清爽温暖。
看了上面三套实操日式装修设计案例,我们来总结下日式风格特点
有多少人认为日式风格就是简约而冷淡的呢?日式简约和北欧简约是不一样的,日式装修风格讲究素净简单但同时又不失日常,喜欢日式风格的业主会发现日式风格室内很少见到浮夸的装饰,软装都是最平常而又实用的家居用品。今天要给大家讲解的是如何打造日式家居装修设计。
在讲解之前先要明确的一个点是不要单纯地以为日式就是搞榻榻米和移门,具体日式风格装修的特点有哪些呢,小编为大家总结了以下几点。
01 多选用原木色家具


日式风格追求质朴素雅的感觉,而自带纹理的原木色家具是原木色的家具是日式风格中必不可少的元素之一,简洁耐看而清新自然的原木家具不需要花里胡哨的造型就能营造出一种温润的气质,同时实用性强能够满足生活功能的硬性需求,日式风格简洁而不冷淡的原因就是充满了这种日常感。
02 整体简约不复杂,注重收纳性和实用性


日式装修最大的一个点是简洁性,注重简洁但是收纳性也做得很好。简洁的装修风格让整个空间看起来非常秩序井然,没有那种强加修饰的感觉。喜欢看日剧的朋友应该注意到一点,日剧里面主人公的家大都是放置了高高低低的收纳柜。收纳柜的度实用性极强,可以当做书柜、床头柜等甚至可以做电视墙,把实用性发挥到了极致。
03 家居装饰自然素净,家具布置轻盈低矮


日式家具一般都是轻盈而矮小,柜子和桌子都比较低矮,即使整个房子的可用空间不大,但是看起来一点都不逼仄和压抑,给人以宽敞明亮的感觉。日式餐边柜通常只有我们腰部那么高,但是餐具却摆放得很整齐。
02 配色清新自然,常用米色+白色的色彩搭配



日式家居中强调的是自然色彩的沉静和造型线条的简洁,很少见到浮夸的装饰。因此日式装修的整体用色多以纯色为主,常用米色+白色的色彩搭配,用色简单而自然。
想了解自己的房子报价多少?点击下方链接3秒立即计算,还能领取4套免费家装,不花一分钱,省心更省力!
↓↓↓↓↓↓
免费装修预算方案_免费设计方案_房屋装修报价清单_土拨鼠装修网
本网站的文章部分内容可能来源于网络,仅供大家学习与参考,如有侵权,请联系站长QQ18376601进行删除处理。

蜀ICP备2021014085号-4