新中式禅意风,高级美感与情绪价值的完美融合
2025.09.20 3 0
新中式风格凭借禅意美学与实用功能的完美融合,正成为当代家居设计的热门趋势,其核心在于通过木质格栅、留白墙面、天然材质等元素,营造出空灵静谧的东方意境,同时巧妙融入现代生活场景,低饱和度的原木色与深胡桃色碰撞出层次感,搭配陶瓷、绿植等自然摆件,既保留传统文人雅趣,又通过简约线条规避厚重感,这种风格特别注重情绪价值,以"少即是多"的理念让空间成为精神栖息地,满足都市人群对诗意栖居与高级美学的双重追求,展现出传统文化在现代语境下的创新表达。
当180㎡的开阔空间邂逅新中式美学,便有了这场 “古意今承” 的居住实验 —— 不堆砌符号,不盲从潮流,只以东方意境为骨,现代舒适为魂,为追求生活质感的家庭,打造可居、可赏、可静的理想家。

设计简介:
装修风格:新中式风格
实际面积:180㎡
空间格局:3房2厅
设计师:风云帆设计
项目位置:广东省惠州市
装修造价:预算1200/㎡
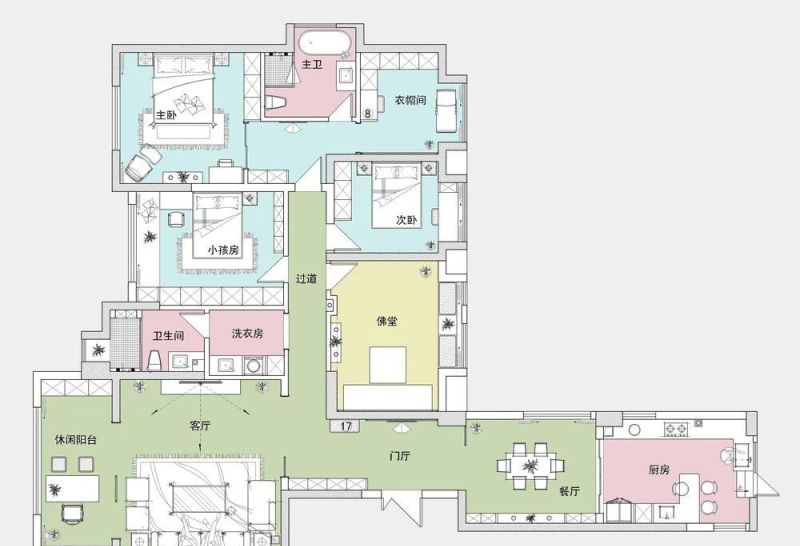
- 户型图

原始户型布局开阔大气。空间规划上,客厅连通休闲阳台,采光与活动尺度拉满;餐厨区衔接生活阳台,烹饪备餐动线流畅。四室加书房的配置,满足起居、办公等多元需求,主卧带主卫,保障私密与舒适。新中式风格将以木质元素、古典纹样与现代简约融合,在这基础户型上,营造出雅致、通透且富有东方韵味的居住空间,让传统美学与现代生活完美邂逅。
- 平面布置图

平面布局焕新呈现~在原始户型基础上,进行了精心优化与功能升级。主卧打造奢适套房,配备独立主卫与衣帽间,尽显尊荣;小孩房与次卧满足家庭起居需求。新增佛堂,为有信仰的业主开辟一方静心之所;洗衣房让家务动线更合理。客厅与休闲阳台相连,延展空间感,是家人互动、待客的核心区域;餐厨一体设计,厨房操作与餐厅用餐流畅衔接,生活阳台还可辅助收纳与晾晒。整体布局在保留新中式大气格局的同时,细化功能分区,让东方雅韵与现代生活的便捷舒适深度融合,每一处都藏着对生活质感的极致追求。
- 玄关



新中式玄关,一进门就把东方雅致拉满!浅木色为主调,搭配水墨山水背景墙,仿佛把自然山水迎进家门。金属线条的端景台,摆上花艺与雅致摆件,精致又有韵味。一旁的收纳区,藏得巧妙,实用还不破坏美感。地面大理石拼花,和顶面的造型灯相互呼应,从踏入家门的第一步,就开启沉浸式的新中式美学体验。
- 客厅



把东方美学与现代舒适狠狠拿捏住了!浅木色家具搭配柔和色调,温润又治愈。背景墙的山水纹样,仿佛将自然画卷搬入室内,意境拉满。定制的收纳柜与空间完美融合,实用又显格调。吊灯设计简约却不失中式韵味,灯光洒下,整个空间温馨又雅致。无论是家人围坐,还是好友小聚,都能在这充满诗意的氛围里,尽享慢生活的惬意。
- 餐厅





浅木色桌椅,线条简约又带着传统圈椅的韵味。墙面的圆形装饰与山水纹样,搭配精致的青瓷摆件,处处透着古典诗意。定制的餐边柜,收纳与展示功能兼具,让空间更显规整有序。吊灯设计精巧,灯光柔和,洒在餐桌的花艺与餐具上,温馨又有格调。
- 休闲阳台



新中式休闲阳台,妥妥的治愈系空间!浅木元素贯穿,搭配雅致的中式吊灯,氛围感直接拉满。摆上一套简约又有韵味的桌椅,再点缀些花艺、茶具,无论是午后品茶,还是傍晚赏景,都超有感觉~旁边的收纳柜实用又美观,把杂物都藏起来,让空间更显整洁雅致。大窗户引入充足光线,整个阳台明亮又通透,在这待着,身心都能得到放松,中式慢生活的惬意感瞬间拉满。
- 过道



墙面嵌入式的小景,摆上精致盆栽,瞬间有了东方园林的雅致感。木质房门上的中式线条,细节满满,和整体风格呼应得恰到好处。
- 主卧室玄关


进到主卧室有一个小小的玄关位置,这小小的仪式感,把情绪价值拉满。
- 主卧室




通过玄关,就来到了主卧的休息区。床头那把扇形装饰,瞬间拉满中式氛围,搭配简约的线条灯,古典又时尚。床品选了柔和的蓝白配色,再加上质感满满的床尾凳,精致感 up!大窗户让阳光肆意洒入,旁边还设置了办公休闲区,不管是工作还是放松都超方便。
- 主卧室衣帽间


定制的梳妆区,镜子、置物架一应俱全,精致又实用。角落摆上绿植,瞬间增添生机与自然气息。顶面的灯光设计,柔和又明亮,让每一件衣物都能清晰呈现。
- 小孩房




新中式小孩房,既保留东方韵味,又满是童真活力~山水装饰画增添雅致,定制收纳柜能装下孩子的各类好物,还有可爱小摆件点缀其间。大窗户让阳光充足,窗边的小角落,孩子能在那看书、玩耍。
- 佛堂




将信仰与美学精妙融合~整体布局庄重典雅,佛像居于中央,周围装饰精美,色彩搭配既显神圣感,又有中式传统的华丽韵味。地面的地毯、打坐的蒲团,细节处尽显用心,营造出宁静、肃穆的氛围。在这里,能让人沉下心来,感受内心的平和与信仰的力量,是家中一方专属于心灵的静谧天地。
本网站的文章部分内容可能来源于网络,仅供大家学习与参考,如有侵权,请联系站长QQ18376601进行删除处理。

蜀ICP备2021014085号-4