95后夫妻138㎡混搭自然风之家,都市里的精神疗愈场
2025.09.18 3 0
成都一对95后夫妻将138㎡住宅改造为混搭自然风精神疗愈空间,以原木、藤编、微水泥等材质构筑松弛感生活场域,客厅打破传统布局,用模块化沙发与编织地毯营造围合式社交区,搭配绿植与落地窗引光入室;餐厨区通过岛台联动功能,胡桃木餐桌与藤编餐椅传递自然气息,主卧采用低饱和色调与弧形线条柔化空间,衣帽间以玻璃隔断保持通透,全屋巧妙融合北欧简约、日式侘寂与现代元素,辅以艺术挂画、手工陶器等个性化软装,打造出兼具美学与功能性的治愈系家居,成为都市高压下的心灵栖息地。(198字)

纯粹简单、安宁充盈,是家的理想状态。
正如德国插画师克里斯托弗·尼曼所言:“越纯粹越艺术,当生活与空间摆脱没有意义的多数,才能有空间面对最本真的少数”。这种纯粹性在设计中犹如呼吸——看似无形,却是生命力的本源。原研哉对“简单”的诠释更显深刻:“‘简单’也不是那么容易可以做到的”,恰似中国水墨中的留白,看似虚空却包罗万象。
家是精神的镜像。作家以文字编织理想国,歌手用音符记录时光,而设计师则通过空间叙事,将“栖居”的本质升华。当我们推开家门,踏入的不只是物理空间,更是一场与自我对话的仪式。

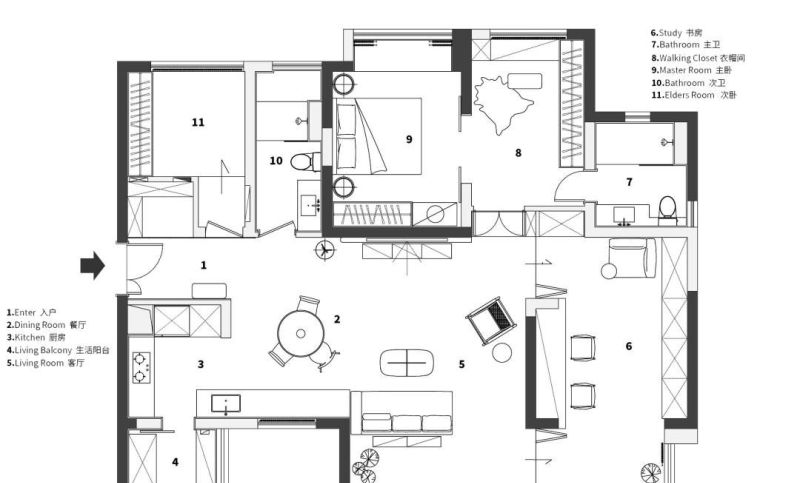
户型图
房子是一套四居室精装房,居住者是一对95后年轻夫妇和他们的爱犬Toki。他们拒绝被标签束缚,崇尚内敛而开放的生活哲学。在两人看来,家不必是某种风格的具象演绎,而应成为他们自在精神的延伸:干净、纯粹,却也藏着不经意的精致。松弛与考究,在这里并非对立,而是共生的韵律。
设计师对空间初诊后,就确立了打破既定框架的构思。原始户型结构反正,却也囿于传统思维的桎梏——功能区划过于刻板,静态空间(如卧室)占据主导,而动态区域(如社交空间)的流动性被弱化。具体到各个空间来看:
混沌的餐厨关系:厨房与餐厅界限模糊,且与入户动线交叉,日常使用中易产生干扰;
被束缚的客厅:横向尺度受限,过道空间利用率低,而阳台与主卧直接连通,牺牲了公共区域的独立性与私密性。

平面方案
于是设计师将空间重置、明确动静分区,并优化洄游动线、放大横向采光优势,将刻板的精装房改造成了具有独立化入户区、一体式餐厨、明朗舒适的客厅、洄游式书房,以及具有隐私性与便捷性的主卧套房的居所,规整而流动、舒适且精致,更加符合屋主的生活态度。


重构后的入户区如同归家仪式的序幕——拆解原有的低效鞋柜,重新规划出一个动线不交叉、更明确、有整体感的入户区;置物架的加入,高效拓展了收纳空间,方便收纳各种小物品,打造出一个干净温馨可爱的空间。

同时,设计师还向客卧“借”了部分空间,划分出一个实用性非常高的收纳库,既成全了玄关区的呼吸感,又让收纳效率大大提升。顶天立地的隐藏门与墙面无缝衔接,关闭状态下保持整洁清爽。

收纳库主要为换鞋空间,内置置物架,方便收纳与拿取,也大大满足了屋主的需求。


餐厨部分,设计师解构并重组了空间关系,打通空间拉伸横向结构,让光线自然贯通,带来通透明亮的视觉效果。居住体验上,餐厨空间融入日常,生活氛围也更浪漫精致。

餐厨的魅力,远不止于味蕾的满足与果腹之需。当建筑语汇注入其间,它便成为每日滋养身心的精神力量,让居住者收获历久弥新的生活体验。屋主将在日常生活中汲取、享受、接纳,不断充盈自己、享受一切,与空间相互融合、适应,循环向上提升。
线条利落的潘通椅与中古木椅混搭,不拘风格、不被定义;圆润的弧线弱化空间的棱角,带来简约大气的空间感受。所谓浪漫,大抵就是日常里的一捧鲜花与一副精致餐具。


清爽干净的橱柜,充足的收纳空间,让厨房不被各种杂物困扰。从容不迫的下厨、享受烹饪的愉悦,是空间给予的力量与底气,是从心出发的生活态度。


细节处,设计师特意预留的冰箱嵌入位、垃圾桶收纳区、墙面小插孔,让每处琐碎都被用心规划,考究的处理给了日常使用足够的底气。

厨房对面的小阳台,留做家政杂物区,各种清洁工具、狗狗餐食都安置于此,隐蔽、整洁且动线合理,日常使用更为便利。

客、餐一字贯通,视野被拉长,呼吸感也随之增强。白色为基调的客厅,更能反映出屋主的气质与精神追求,白,是留白也是坦诚;简,是减法亦是加法。设计师用空间表达出生活的本质,看似“简单”的全局,实则蕴含着丰富的空间语言与内核力量。



ChapterHome的咖色布艺沙发搭配Nychairx休闲椅,搭建出客厅核心地带,也塑造出整个空间的松弛感。柔软材质与自然肌理的碰撞,悄然消除生活的紧绷,令人肆意享受绿植、阳光与万物。
沙发转身靠向阳台,鸡肋过道瞬间变身最佳观影位:100寸超大屏幕,光影与温馨一起铺满灵动客厅。
客厅一旁的书房,则用一种克制的表现力,平衡着空间的功能与艺术性。圆形装饰元素增加灵动感,折叠门开合之间,带动出空间节奏感,吸引着屋主去开拓下一个场景。


紧邻客厅的书房,一门之隔划分出动静空间。折叠门轻阖,地面微微抬高,空间转换的仪式感悄然铺陈,让书房成为动态空间的一部分,可沉浸静默,可汇入喧腾。


书房内,原木色大面积铺陈,自带疗愈滤镜;落地窗将外部绿意直接引入眼底,抬眼间心就先一步放晴;承重墙延伸定制书桌,顺势而筑,不浪费一厘米;整墙收纳贴长边静默而立,藏露有度。
结构与功能咬合得严丝合缝,秩序与美感一气呵成——人在其间,只需听从木与光的安排,阅读、发呆,都被温柔地允许。



主卧套房,是整个空间最为舒适、隐秘的空间,关上门就是一个独立场所。除了卧室,衣帽间与卫生间也合理分配于此。层层入内的生活动线便是套房卧室的魅力所在,构建出屋主心中的理想居所。



当功能藏于细节,舍去复杂冗余之后,空间则保留下更多简约清爽,处处体现出细腻入微、低调内敛的质感。


门口的洞洞板,也可做灵活收纳使用。
客卧则更注重灵活多变,设计师利用地台来满足储存、休憩空间等,其余空间暂时留白,保留一定灵活性,方便日后随时调整。

对于家的探索,想必我们都从未止步。无论多大的空间中,不仅能够容纳下生活状态,也隐喻着生活态度。希望我们都能够在喧嚣之中拥有一处可安放心灵的精神疗愈场,那里纯粹、美好、简单、细腻、自由、松弛......可以不受束缚,敞开心灵去拥抱生活,拥抱最真实的自己。
编辑|Kiki
文字|葡萄
设计与图片来源|文虫三空间设计




本网站的文章部分内容可能来源于网络,仅供大家学习与参考,如有侵权,请联系站长QQ18376601进行删除处理。

蜀ICP备2021014085号-4