140㎡现代侘寂混搭复古,优雅格调演绎质感生活
2025.09.17 3 0
【140㎡现代混搭侘寂风,演绎优雅复古美学】本案以140㎡空间为载体,巧妙融合现代极简与侘寂哲学,通过低饱和奶油色系奠定静谧基调,设计师打破传统布局,采用弧形墙面与微水泥材质营造质朴肌理,搭配藤编、原木等天然元素,诠释"不完美的完美"侘寂精髓,空间内现代家具与中古单品碰撞,如Flos抛物线灯与斑驳做旧边柜形成时空对话,定制金属框玻璃隔断既划分功能区又延续通透感,细节处融入Art Deco线条与陶器摆件,在留白与斑驳间达成微妙的视觉平衡,最终呈现出一个兼具现代舒适感与岁月沉淀美的诗意栖居。
▲ 点击上方关注本号,更多行业内容推送

本案将极简、复古与侘寂杂糅,墙顶一体的奶茶色艺术涂料,深木地板鱼骨拼通铺地面,局部吊顶的方式尽量保持层高,突出的梁体结构的处理方式是亮点之一,深咖色实木镶边包裹奠定空间基调,处处呼应塑造高级侘寂感,不靠复杂的装饰,现代简约里也有优雅复古味。

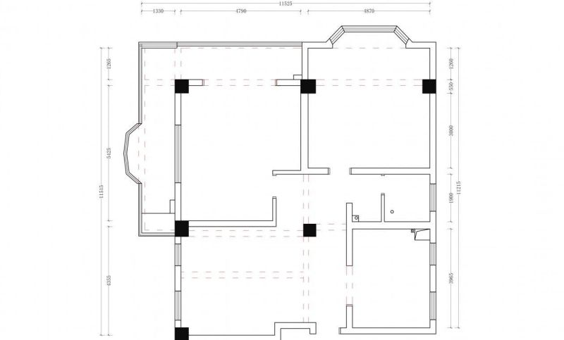
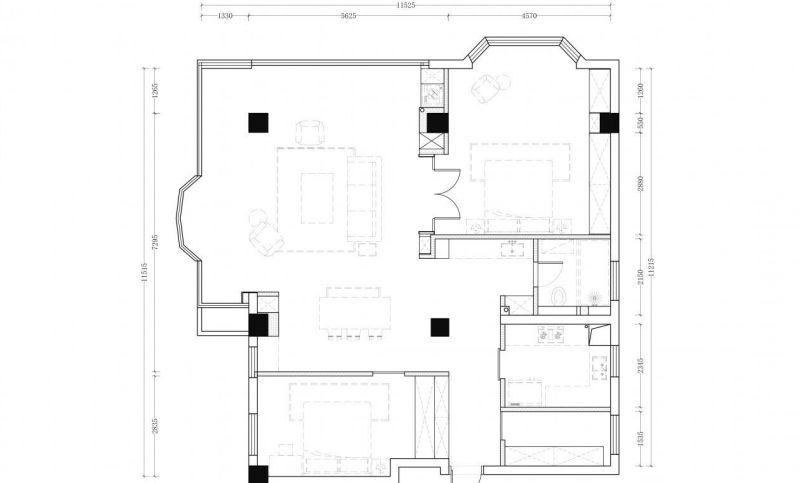
户型方正,公区开阔,但空间布局不是很常规,改动可操作性较高,有较高的空间利用率。

空间改造上大方向没有很大的变化,细节上的调整却不少,主要体现在如下几点:
1.借用厨房1/3的空间,在入户区打造一个独立鞋帽间,另一边墙面也是满墙收纳柜,给日常生活带来实实在在的便捷;
2.客餐一体全开放设计,L型大阳台全部封入室内,大大宽敞了整个空间,采光也得到优越提升;
3.改变主卧进门方向,将卫生间干区延长,三分离设计舒适便捷,给业主高品质居家生活。





















项目地址 / 南京·文化名园
项目面积 / 140㎡
设计机构 / 熹维设计
空间摄影 / INGALLERY
图文来源“熹维设计”,很高兴你看完分享的内容!如果喜欢,欢迎点赞、评论、分享哦!
为不错过更多精彩内容,快来关注“地产人设计圈”!
本网站的文章部分内容可能来源于网络,仅供大家学习与参考,如有侵权,请联系站长QQ18376601进行删除处理。

蜀ICP备2021014085号-4