102㎡侘寂风,化繁为简的高级感,普通家庭也能轻松打造
2025.09.11 3 0
侘寂风以极简美学诠释高级感,这套102㎡的案例证明普通家庭也能轻松驾驭,设计摒弃繁杂装饰,运用微水泥、原木等天然材质,营造质朴自然的空间基调,低饱和的米灰色调搭配弧形线条,弱化棱角的同时提升视觉温度,定制柜体与墙面无缝衔接,巧妙收纳让生活杂物“隐形”,软装选择粗陶、藤编等手工感单品,以瑕疵美取代精致感,每一处细节都诉说着时光痕迹,全屋采用无主灯设计,通过隐藏光源与局部重点照明,打造柔和光影层次,该案例打破了侘寂风“昂贵不实用”的刻板印象,用高性价比方案实现简约而不简单的居住哲学,堪称小户型改造范本。(198字)
有没有人跟我一样,以前对“侘寂风”的印象停留在“冷清清的展厅感”?直到看到这种“暖系侘寂”才反应过来:原来侘寂不是“装给别人看的”,是“装给自个儿住的”——它能把“好看”和“好用”揉在一起,普通家庭住进去,既不会觉得“太刻意”,又能天天感受到“这房子懂我”。
很多人装房子最纠结的是什么?

不是选什么风格,是“想要的太多,怕顾此失彼”:想客厅通透,又要区分书房;想玄关能装,又不想堆得乱;想厨房敞亮,又怕油烟串味。你看这102㎡的房子,刚好把这些“两难”都解了,每一处都透着“过日子的聪明”。
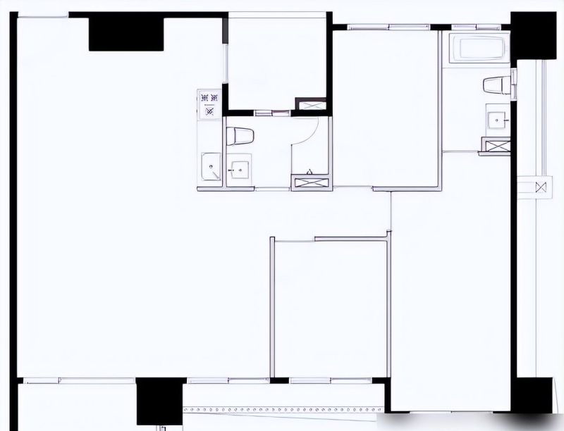
先说玄关,谁家里没个婴儿车、购物小推车要藏?

直接做了个杂物间,就挨着鞋柜——不用的时候推进去,门口连个轮子都看不见,清清爽爽的。
地面用耐磨地砖当落尘区,跟屋里地板差了点高度,进门先蹭蹭鞋,脏东西全拦在外面,这种“看不见的细节”,比装个华丽的玄关柜有用一百倍。

再看客厅,想分开客厅和书房,又不想用实墙挡光?
人家用了1.5米高的半高墙,还是弧形的!

墙不高,刚好把两个空间“划开”,但光能从墙上面透过来,客厅还是亮亮的。天花板也做了弧形,跟半高墙呼应,整个空间没有“直角的生硬”,看着就软乎乎的。最妙的是半高墙靠客厅的一侧没落地,下面留着空,还装了暖灯带——晚上开着灯,光从底下渗出来,客厅瞬间暖起来,哪里还有“侘寂风的冷”?
书房更是戳中年轻人的“痛点”!现在夫妻都要居家办公,书桌不够大怎么办?直接做了悬空的抽屉书桌,桌面宽得能放两台电脑,两个人一起用也不挤。悬空设计太聪明了——扫地机器人能直接钻进去,不用蹲在地上擦缝隙;嵌入式书柜加拱形壁龛,书、摆件都能摆进去,整齐又有层次,比那种“摆满家具的封闭式书房”实用多了。

厨房的设计我最服——两道能全收起来的玻璃拉门!
想做饭时拉上,油烟别想跑;周末想跟家人一起吃火锅,把拉门收了,厨房和餐厅连成片,边煮边聊天都方便。

厨房里面也没搞复杂的材质,就保持奶白色,好打扫又不突兀——厨房的“高级感”从来不是堆大理石,是“能敞开吃,也能快速收拾”。
餐厅更懂“极简的好”:没有大桌子、浮夸的背景墙,就用简约的桌椅,空间通透得能跑起来。

餐边柜从玄关转过来,全白的,还留了个开放式壁龛放餐具——平时摆个茶壶、放个面包机,拿取方便,看着也不乱。
整个房子的颜色就两种:奶白加一点点木色。

没有多余的色彩,却一点都不单调——墙面用艺术漆,摸起来有质感;地板是木质的,踩上去温温的;家具选低饱和的,摆在一起就像“天生该在这儿”。你看,“高级感”从来不是堆出来的,是“删出来的”——删掉多余的材质,删掉没用的装饰,剩下的每一样都“刚好有用”。
其实装房子到最后,比的不是“谁用的材料贵”,是“谁更懂生活”:玄关的杂物间,是懂你“不想门口乱”;半高墙的弧形,是懂你“不想挡光”;悬空书桌,是懂你“不想擦缝隙”。这些“懂你的细节”,才是家最该有的样子。

你说,这样的侘寂风,是不是比那些“看起来好看、用起来麻烦”的风格强多了?有没有姐妹跟我一样,看完想把自己家拆了重装?或者你们装房子时最头疼的“两难”是什么?
咱们评论区聊聊~




本网站的文章部分内容可能来源于网络,仅供大家学习与参考,如有侵权,请联系站长QQ18376601进行删除处理。

蜀ICP备2021014085号-4