135㎡轻奢现代风新家,简约高级让亲戚羡慕不已!
2025.08.31 3 0
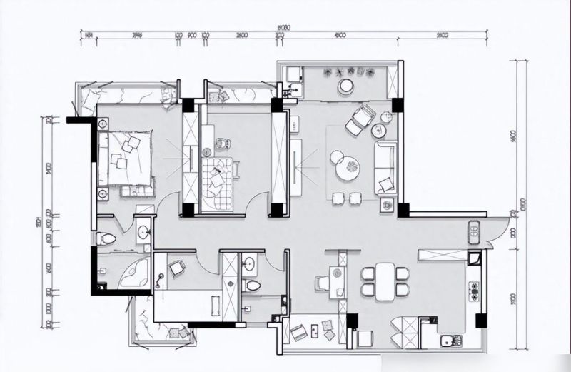
这套135㎡的轻奢现代风住宅以简约设计诠释高级质感,成为亲友艳羡的焦点,空间采用低饱和色调搭配金属、大理石等材质,通过隐形灯带、无主灯设计营造层次光影,凸显现代美学,客厅以悬浮电视墙与模块化沙发打造通透感,餐厅的岩板圆桌与丝绒餐椅轻奢感十足,主卧套房配置步入式衣帽间和玻璃隔断主卫,兼顾私密与时尚,全屋智能家居系统、嵌入式家电及多功能岛台的设计,在实用性与视觉格调间取得平衡,以"少即是多"的理念让每一处细节都成为品质生活的注脚,完美实现"低调显贵"的轻奢范儿。
这套装修真正戳中了咱们过日子又要体面的痛点。
长玄关走廊加镜面设计,进门就显敞亮,定制柜把全家杂物藏得严严实实——亲戚串门时那第一眼的整洁劲儿,可比炫耀名牌包有说服力多了。

客厅用大理石背景墙打底,配个橙色调皮沙发,冷峻里跳出一抹暖,像给黑白照片加了金框,高级感立刻活起来。
轻奢风最怕变成暴发户展厅,但这套把钱花得贼聪明。

黄铜吊灯和镜面隔板这些点睛之笔,价格不比高档瓷砖贵,效果却翻倍。
厨房香槟色橱柜配白地砖,耐脏得像穿了深色牛仔裤,中年家庭爆炒十顿饭都看不出油星子。

国产优等大理石和玻璃材质更是精明之选,远看有进口石材的流光,近摸钱包不心慌。
最服气的是空间榨干术!

儿童房书桌嵌进飘窗,书架墙省出两平米活动区;书房柜子通顶不到边,留条缝放绿植,瞬间打破压抑感。
这种定制家具好比变形金刚——收得起玩具车,展得开拼图板,孩子满地打滚时爹妈还能优雅喝杯茶。

卫浴分区简直是家庭和谐密码。
淋浴房和浴缸分开,老人防滑小孩戏水两不误;双台盆早上抢厕所不打架,镜柜里藏电动牙刷和降压药。

亲戚夸“你家厕所比酒店还亮堂”时,心里偷着乐:这哪是装修,分明是给鸡飞狗跳的日子装了缓冲垫。
说到底,轻奢的精髓像煮广式老火汤——猛火煮沸后得转文火慢煨。

客厅那盏泡泡吊灯是汤里的瑶柱,厨房金属把手是撒的胡椒粒,钱全用在提鲜的刀刃上。
亲戚眼里看着是面子,自家人用着是里子,这才叫真正的划算买卖。









本网站的文章部分内容可能来源于网络,仅供大家学习与参考,如有侵权,请联系站长QQ18376601进行删除处理。

蜀ICP备2021014085号-4