110㎡日式小清新家装,进门留空设计,视觉宽敞又舒适
2025.08.18 3 0
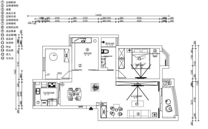
这套110㎡的日式小清新住宅,通过巧妙的设计让空间显得格外宽敞,入户区域采用留空处理,减少冗余隔断,搭配原木色家具与浅色调软装,营造出通透自然的氛围,开放式布局串联起客厅、餐厅与厨房,辅以绿植和简约装饰,强化了清新治愈的格调,功能上兼顾储物与舒适性,如定制榻榻米和隐藏式收纳,既实用又不失美感,整体设计以“少即是多”为核心理念,打造出兼具颜值与实用性的理想家居。
凌晨12点,踩着磨脚的高跟鞋挤完最后一班地铁,掏钥匙开门时,玄关的鞋堆得像座小山——孩子的运动鞋、老公的皮鞋、自己的高跟鞋,混着快递盒、雨伞,把仅有的空间占得满满当当。想找双拖鞋,得扒开三层鞋才摸到,刚把包放下,孩子的玩具车“唰”地从脚边滑过,差点绊倒,疼得皱起眉头:这哪是家?分明是个每天都要“战斗”的杂物场!

周末想给家人做顿红烧肉,进厨房才发现,台面摆着电饭锅、微波炉、搅拌机,连切姜的地方都没有。刚拿起刀,油锅里的油“噼啪”溅到胳膊上,疼得直抽气,看着乱哄哄的厨房,突然就没了做饭的兴致——明明想给家人温暖,怎么倒成了自己的负担?

晚上躺床上刷手机,想起明天要穿的衬衫,爬起来翻衣柜,里面的衣服塞得像团乱麻:春天的卫衣、夏天的裙子、秋天的毛衣,挤在一起找不到头绪。翻了十分钟才找到衬衫,结果把刚叠好的毛衣又弄乱了,气得把衣服往床上一扔,坐在床边叹气:这日子怎么过得这么累?

直到看到南京这套110㎡的日式风案例,才突然明白:好的装修,不是堆多少家具,而是懂你没说出口的“麻烦”,把每个痛点都变成“治愈点”。

玄关的设计简直是“救星”——下沉式地面让换鞋变成仪式感,定制的双排金属横杆能挂5件外套,下面的储物箱装下了孩子的玩具车和老公的工具箱,鞋架分层摆着日常穿的鞋,再也不用扒小山找拖鞋。进门的瞬间,脚踩在温暖的木地板上,连呼吸都变轻了。

客厅的回形吊顶像把空间“理”顺了,沙发区和就餐区分得清清楚楚,低矮的原木沙发占的空间只有普通沙发的一半,孩子能在地毯上跑着玩积木,老公坐在旁边拼乐高,自己窝在沙发里看剧,再也不用绕着家具走。粗麻地毯的质感踩着软乎乎的,连猫都喜欢趴在上面打盹。

厨房的U形橱柜是“做饭神器”,台面够大,能同时切菜、摆盘,嵌入式微波炉和烤箱藏在柜子里,台面终于清爽了。冰箱旁边的柜子放着豆浆机、面包机,再也不用堆在台面上占地方。周末做红烧肉时,油不会溅到胳膊上,因为台面够宽,转身就能拿到调料,连做饭都变成了享受。

卧室的榻榻米太懂小空间了,地面的储物地台装下了冬天的棉被和换季衣服,门两侧的衣柜挂下所有外套,抽屉柜放内衣、袜子,再也不用翻衣柜翻得满头大汗。晚上躺榻榻米上,闻着原木的香味,听着孩子的呼吸声,突然就觉得安心——原来卧室不是“睡觉的地方”,是能让你彻底放松的港湾。

书房的抬高设计太实用了,不仅能当书房写方案,还能当客房住朋友,孩子周末能在上面搭帐篷玩,老公偶尔能邀请朋友来喝茶。地面的储物空间装下了孩子的乐高和自己的书,连猫都有了爬架的地方。坐在上面看书,阳光从窗户照进来,洒在原木色地板上,连风都带着青草的味道。
孩子的房间留了大半空间当玩耍区,高低床旁边是乐高积木墙,麻布帐篷挂在天花板上,孩子每天放学都蹦着进去玩,再也不用抢客厅的空间。顶部的娃娃吊灯像颗星星,晚上开着,房间里暖乎乎的,连梦都变得甜了。
卫生间的小白砖配木色元素,像走进了日式温泉店,坐式浴缸能泡半小时,洗去一天的疲惫。小白砖容易打理,再也不用蹲在地上刷瓷砖缝,连洗澡都变成了享受。
厨房的洗衣机藏在柜子里,阳台的空间腾出来做了休闲区,摆着藤椅和绿植,周末能坐在上面晒晒太阳,喝杯茶,看孩子在客厅玩。风从窗户吹进来,带着绿植的香味,突然就懂了日式风的“禅意”——不是空无一物,是把“麻烦”都藏起来,把“舒服”都露出来。
原来好的装修,不是让你“适应”房子,而是房子“适应”你。就像这套日式风的房子,没有华丽的装饰,却把每个“麻烦”都变成了“安心”:玄关的储物箱懂你换鞋的麻烦,客厅的低矮沙发懂你想陪孩子玩的心情,厨房的U形橱柜懂你想做饭的温暖,卧室的榻榻米懂你想放松的需求。
现在,每天回家推开门,看到整洁的玄关,闻到原木的香味,孩子跑过来抱你,老公在厨房喊“饭好了”,突然就觉得:这才是家该有的样子——不是完美的,却是懂你的,把所有的“累”都变成“甜”,把所有的“麻烦”都变成“治愈”。
本网站的文章部分内容可能来源于网络,仅供大家学习与参考,如有侵权,请联系站长QQ18376601进行删除处理。

蜀ICP备2021014085号-4