46㎡深圳小宅巧改侘寂风,隐形厨卫+极简美学
2025.08.16 3 0
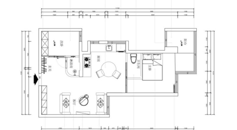
这套46㎡深圳小户型改造案例以侘寂风为基调,融合断舍离理念,打造出简约而富有质感的居住空间,设计师通过开放式布局优化动线,浅灰微水泥墙面与原木元素碰撞出自然侘寂美学,厨卫区域暗藏巧思:厨房采用隐藏式推拉门兼顾通透与隔烟,嵌入式家电节省空间;卫生间通过壁挂马桶、悬浮台盆实现视觉减负,干湿分离设计提升实用性,全屋定制收纳系统贯彻"藏八露二"原则,既满足储物需求又保持空间呼吸感,软装搭配以素麻、藤编材质为主,点缀枯枝陶器,将侘寂风的残缺之美与现代功能完美结合,为都市蜗居者提供了诗意栖居范本。(198字)
每天挤在46平的小房子里,厨卫加起来还没3平,做饭时转身撞灶台,洗澡时连脱衣服都要踮脚;客厅像条窄过道,摆个单人沙发都嫌占地方,朋友来家里只能坐地上;卧室连个衣柜都放不下,衣服堆得满床都是,想找件衬衫得翻半小时——这是不是很多小户型业主的“崩溃日常”?明明花了钱买房,却住得像“蜗居”,连呼吸都觉得压抑。

但深圳这套46㎡的小户型,却把这些“崩溃瞬间”都变成了“惊喜时刻”,甚至还做出了侘寂风的高级感,秘诀就藏在“把空间用对地方”的巧思里。

原本人挤人的厨卫,直接打通合并成餐厨一体区。灶台上方贴瓷砖方便日常打理,其余墙面用水泥漆延续客厅的侘寂风,圆形餐桌配中古风椅子和藤质圆凳,既解决了厨卫太小的问题,又和客厅形成一体化空间,视觉上瞬间大了一倍,做饭时还能和客厅的人聊天,比原来的“闷头做饭”舒服多了。

暂时用不到的次卧,把墙体向内退了一部分,腾出了完整的入户区。左边放了一组成品鞋柜,能收纳日常的鞋子和衣物;右边做了个弧形淋浴间,不仅解决了入户挤的问题,动线还更流畅了,再也不用进门就撞墙。

卫生间的设计更是“神来之笔”——借主卧的面积做了马桶和台盆区,借入户区的面积做了淋浴间,彻底实现了干湿分离。墙体顶部做了镂空处理,既能引光通风,又不影响私密性,入墙式的龙头和花洒让空间更干净利落,比原来的“挤得转不开身”的卫生间舒服多了。

客厅放弃了传统的“沙发+电视”布局,做了“去客厅化”设计。面对面摆了两张沙发,形成围合式布局,既能会客又能阅读,甚至还能当临时办公区,符合年轻人的生活方式,比原来的“过道客厅”实用多了,朋友来家里再也不用坐地上了。

墙面和地面都用了水泥漆和艺术漆,去繁就简的材质呼应了侘寂风,又显高级。没有复杂的吊顶和吊灯,只用了简单的吸顶灯,避免了压抑感,光线更柔和,整个空间看起来更宽敞。

主卧虽然划出了部分空间给卫生间,但放弃了常规的衣柜,用次卧做储物空间。次卧的地面抬高留空,既能放衣服又能当客房,甚至还能做瑜伽区,比原来的“死空间”实用多了,再也不用为衣服没地方放发愁了。

小户型的魅力,从来不是“将就”,而是“巧思”。像这套房子,没有大拆大改,只是把每一寸空间都用到了刀刃上——厨卫合并解决了痛点,去客厅化符合生活方式,甚至连卫生间的镂空都藏着小心思。住在这里,不用再挤着做饭,不用再对着堆满地的衣服发愁,连呼吸都觉得顺畅,这才是小户型该有的样子。它证明了,哪怕房子小,只要用心设计,也能住出大幸福。
本网站的文章部分内容可能来源于网络,仅供大家学习与参考,如有侵权,请联系站长QQ18376601进行删除处理。

蜀ICP备2021014085号-4