135㎡现代轻奢风,稳重配色与华丽材质的完美融合,打造高级感家居
2025.08.15 3 0
这套135㎡的现代轻奢风格住宅,通过稳重舒适的配色与轻奢华丽的材质搭配,营造出高级感十足的居住空间,整体设计以中性色调为主,融入金属、大理石等精致材质,在简约中透露出低调的奢华感,客厅采用质感沙发与几何线条灯具的组合,搭配艺术装饰画提升格调;餐厅选用岩板餐桌与丝绒餐椅,通过材质碰撞展现轻奢韵味,卧室延续沉稳基调,皮质床头与金属吊灯相得益彰,局部跳色软装增添活力,全屋巧妙平衡了现代风格的简洁与轻奢元素的华丽感,既满足实用性又彰显品质,最终呈现出一个兼具温度与高级感的理想家居范本。
这是一套135平米的现代轻奢风格装修案例,整个空间以现代风的设计基调,布置上稳重舒适的硬装与家具配色,再以轻奢质感的设计元素,打造了一个华丽高级的居住环境。
客厅

▲客厅现代大方的设计,天花吊平顶的简洁造型,整个空间充满端庄优雅而自然的设计氛围感;地面铺上暖灰色地毯,布置上皮艺材质的沙发与凳子,电视墙以玻璃屏风造型设计,也让空间显得更加雅韵高级。

▲沙发墙以蓝灰色为主,加入边框造型,挂上几何造型的装饰画,茶几是石材材质的,茶几上摆着花瓶与杂志,沙发角落位置一盏铜质感的落地灯装饰,整个空间也是充满现代精致的设计质感。


▲蓝色+橙色的撞色窗帘与装饰画,还有脏橙色的休闲椅,带来一种华丽端庄的高级设计氛围。茶几上的有色玻璃花瓶,也是使得空间更有艺术设计氛围。
餐厅

▲以岩板台面的餐桌,搭配橙色皮艺餐椅,窗帘是灰色+橙色的撞色搭配,餐桌上摆上精致的餐具、高脚杯与插上鲜花的花瓶,餐桌上方装一盏金属杆的球形吊灯,营造出一种现代雅致的用餐仪式感。
书房

▲书房设在电视墙后方,中间以长虹玻璃作为隔墙,让书房空间更加明亮,居中摆上橙色+黑色撞色的书桌椅,靠墙装上书架+休闲凳,让书房空间有着更丰富实用的功能。
卧室

▲卧室床头墙蓝灰色的主体,四周是边框线条造型,左侧靠一幅竖纹图案的装饰画,布置上米灰色的皮艺床,布置灰色+咖色的床单枕头,整个卧室充满华丽优雅的舒适设计感。


▲床头靠背是棕色的,旁边床头柜与吊灯是金属质感的设计,床头柜上再摆上轻奢风的装饰画,使得空间充满温情优雅的华丽与档次效果。
次卧

▲次卧整个空间的墙面是灰色为主,而斗柜与床头柜则是黑色的,加上灰色皮艺床,床头墙挂上黑白灰的组合装饰画,两侧球形的吊灯与台灯布置,带来一种现代简约而端庄的卧室空间氛围。

▲黑色柜体+白色石材台面的床头柜,上方一盏球形的吊灯,整体现代舒适的布置,显得前卫时尚而高级。
儿童房

▲儿童房的床头墙在灰色的墙布基础,床头靠背区域装了一个屋顶造型个的护墙板,护墙板与床单都采取蓝色的搭配,在加入黄色的毯子与床头柜,碰撞出一种活泼跳跃的色彩。

▲黄与蓝之间,以活泼童趣的色彩,彰显出一种生机与宁静的氛围感。
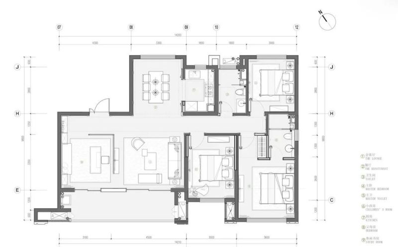
平面布置图

设计:柏年印象,麒文摄影,点评:设计馆
本网站的文章部分内容可能来源于网络,仅供大家学习与参考,如有侵权,请联系站长QQ18376601进行删除处理。

蜀ICP备2021014085号-4