成都一户人家装修简洁有格调,分享给大家欣赏
2025.08.13 3 0
成都一户人家的装修近日引发关注,其简洁有格调的设计风格被网友称赞,全屋采用低饱和色调,搭配原木元素与留白手法,营造出自然通透的视觉感,客厅通过隐藏式收纳和几何线条家具实现功能与美学的平衡,餐厅的藤编吊灯与亚麻材质软装更添质朴韵味,卧室以微水泥墙面和隐形灯带打造极简氛围,局部绿植点缀赋予空间生机,该案例展现了如何通过材质碰撞和克制用色,在有限预算内实现高级感,为都市住宅提供了"少即是多"的装修范本。(约150字)
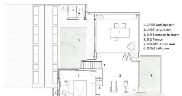
顶楼这事儿大家都有顾虑,怕漏水怕热怕“不好改造”,但这家倒把顶楼的好处挖得透——采光真叫绝,阴天屋里都亮堂堂的,站阳台看出去,树顶和远处的楼层层叠叠,跟站在小观景台似的,比低楼层的“一线楼缝”强多了。最有意思的是那些混凝土梁,别人躲都来不及,这儿居然把表面的白漆铲了,露出钢筋混凝土的本来模样,粗粝的质感反而比贴瓷砖包石膏线的“假精致”更有劲儿——就像穿惯了oversize卫衣的人,突然看见一件洗得发白的基础T恤,简单却自带高级感。
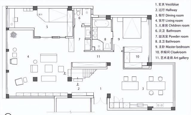
原来的房子布局多拧巴啊,北面塞客厅厨房,南面挤三间卧室,通道黑得跟隧道似的,露台就用来晒衣服。

这家倒好,把非承重墙全拆了,重新排布局:北面放主卧和餐厨,南面搞客厅和儿童房,中间留楼梯和卫生间,整个空间跟被“捋顺”了似的,风从南窗进北窗出,光也能穿透整个屋子。
入户门右边做了个带换鞋凳的白色柜子,一家三口进出门换鞋不用蹲地上,多省劲儿?

客厅更绝,地面用水泥自流平,没铺那些花里胡哨的瓷砖;靠墙做了整面书柜,还拆了块天花板挑空,露出阁楼的尖顶——你看,本来层高不算特别高,这么一弄,光从挑空处漏下来,连空气都跟着“呼吸”了,看书的时候抬头能看见阁楼的木梁,比装个大水晶灯有味道多了。
家具选得也巧,意式沙发的曲线配混凝土柱的直线,跟咖啡加了奶似的,刚硬里揉着柔,一点都不刺眼。

餐厨一体的设计太懂生活了,原来的厨房和阳台打通,做了个深灰色岛台,原木色的墙面配暖光灯,做饭的时候家人能在旁边剥蒜聊天,比关在小厨房里闷头炒菜强一百倍。
卧室更实在,主卧铺人字拼地板,床和衣柜都是实木的,棉麻床品一铺,没有多余的花纹——睡觉的地方不就该这样吗?

要那么多装饰干什么,舒服才是根儿。
儿童房搞成复式的,下面睡觉上面玩,靠墙的柜子跟屋顶尖顶呼应,既有童趣又不占地方,小朋友肯定能在上面玩半天积木。

最妙的是阁楼,改成工作室和健身房,还能拉移动隔墙分开——想画画的时候拉上帘,安安静静;想跑步的时候打开,玻璃折叠窗一推,外面的草坪和花就在眼前,连运动都变舒服了。
你说现在好多装修是不是“装反了”?总想着把空间“填满”,什么背景墙、吊顶、装饰画全往上堆,结果越装越挤,越住越闷。这家倒好,做“减法”:不包梁不包柱,不搞复杂造型,不用贵得离谱的材料,就靠空间的流动和材质的质感撑着,反而比那些“满装”的房子更有温度。

装修这事儿啊,说到底是“装生活”不是“装面子”。把光线留够,把空间让开,把没用的东西去掉,这样的房子才能住得久——你见过哪件“简单”的东西会轻易过时?就像这家的混凝土梁,没有华丽的外衣,却比那些贴了瓷砖的梁更耐看;就像客厅的挑空,没有复杂的吊顶,却比装了花灯的客厅更让人放松。要是以后我装修,说不定也会学这家:多留点儿“本来面目”,多给生活留点儿“呼吸感”——毕竟房子是用来住的,不是用来“展示”的,你说是不是?















本网站的文章部分内容可能来源于网络,仅供大家学习与参考,如有侵权,请联系站长QQ18376601进行删除处理。

蜀ICP备2021014085号-4