134㎡美式风新家实景丨诸暨高创奕府装修完工,优雅复古超有范儿!
2025.08.10 3 0
本案为诸暨高创奕府134㎡美式风格装修实景,整体以经典美式元素融合现代舒适理念,呈现优雅与实用并重的居家空间,客厅采用暖灰护墙板搭配深棕实木家具,皮质沙发与金属吊灯增添轻奢质感;餐厅设计卡座与圆形吊顶,提升空间利用率与氛围感,主卧以灰蓝色背景墙搭配白色定制衣柜,次卧则通过榻榻米+书桌实现多功能性,厨房采用U型布局与仿古砖,卫生间干湿分离设计兼顾美观与实用,全屋通过线条造型、复古灯具及软装细节,完美诠释了低调奢华的美式格调,满足三代同堂的生活需求。(约160字)
客厅| Living Room

诸暨珊瑚装饰
客厅整体柔和白色融入黑檀木;
融合美式与中式的复古;

诸暨珊瑚装饰

诸暨珊瑚装饰
大气端庄的实木沙发与字画相互映衬;
每一处细节都透露着东方雅韵之美;

诸暨珊瑚装饰
电视背景大理石上墙;
营造出平和恬静之感;

诸暨珊瑚装饰
家具中融合精细的螺钿工艺;
使贝壳在阳光下闪烁着绚丽的光芒;

诸暨珊瑚装饰

诸暨珊瑚装饰
餐厅| Dining Room

诸暨珊瑚装饰

诸暨珊瑚装饰
餐厅以经典的深棕;
带来古典美式的优雅氛围;

诸暨珊瑚装饰
美式复古实木角柜;
低调的奢华点缀;

诸暨珊瑚装饰

诸暨珊瑚装饰
洗衣阳台设计简约;
通透自然;

诸暨珊瑚装饰
厨房| Kitchen

诸暨珊瑚装饰
推开墨色玻璃移门便是厨房;

诸暨珊瑚装饰
U型操作台;
提供充足操作与摆放空间;

诸暨珊瑚装饰
书房| Study

诸暨珊瑚装饰
书房以红木铺陈空间;
营造宁静松弛的氛围;

诸暨珊瑚装饰
空白处悬挂书法字画;
增添文化底蕴;

诸暨珊瑚装饰
卧室| Bedroom

诸暨珊瑚装饰
主卧兼具浪漫与典雅氛围;
色调和谐统一;

诸暨珊瑚装饰

诸暨珊瑚装饰
美式全实木衣柜;
提升空间格调;

诸暨珊瑚装饰
床头家具繁复雕花;
更具美式复古气息;

诸暨珊瑚装饰

诸暨珊瑚装饰
次卧简约实用;

诸暨珊瑚装饰
光线充足;
打造宁静休憩空间;

诸暨珊瑚装饰
项 目 信 息
【浙江诸暨】 / 品质家装 / 2025
项目地址:诸暨·高创奕府
项目户型:平层
装修面积:134㎡
装修单位:珊瑚装饰设计+施工
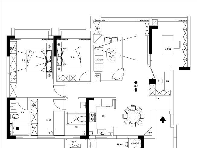
平面布置图

诸暨珊瑚装饰
—— END ——
本网站的文章部分内容可能来源于网络,仅供大家学习与参考,如有侵权,请联系站长QQ18376601进行删除处理。

蜀ICP备2021014085号-4