年轻人偏爱横厅设计,现代风格打造敞亮极简生活空间
2025.08.08 3 0
现代年轻人愈发青睐横厅户型设计,其开放式布局与现代风格装修相得益彰,营造出通透敞亮的空间感,横厅通过减少隔断墙实现客餐厅一体化,搭配大面积落地窗引入自然光,视觉上放大空间尺度,极简主义的装修手法——如纯色墙面、无主灯设计、隐藏式收纳和线条感家具——进一步强化了开阔感,同时满足对简约美学的追求,这种设计不仅提升了居住舒适度,更通过"去繁就简"呼应了当代青年崇尚高效、自由的生活理念,成为都市住宅的热门选择。(148字)
传统户型讲究“左厅右餐”实现南北对流,可横厅偏要打破格局,把客餐厅连在一起,难道不怕不通透?其实,不管竖厅还是横厅,“通透”的本质都是让风能穿堂过,光能满室洒。

南北通透不是“有南有北窗”那么简单,得让空气能对流——传统竖厅是客厅对南阳台,餐厅对北窗,中间过道串起;横厅则是客餐厅一体化,面宽比进深大,两个落地窗对着吹,风没阻碍,反而更敞亮。

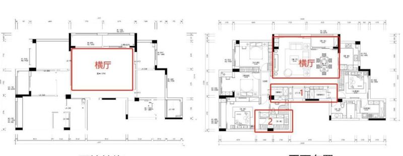
老辈人说“通风好的房子不藏霉”,真没说错。南北通透的房子,夏天风穿过来比空调凉快,冬天阳光照到角落,连沙发缝都没有阴湿味。案例里的170平横厅,把阳台纳入客厅,采光面扩到最大,进家门就觉得舒服。

传统竖厅的“左厅右餐”是老智慧,怕过道占地方;现代横厅的“一体化”是新科学,用短进深换大面宽。比如案例里的沙发没靠墙,不是不怕“风水”,是知道“安全感”来自生活——孩子能跑,大人能聊天,比一面墙管用。

传统竖厅有个通病:过道占10平米,放不了沙发也摆不了餐桌。我之前看套130平竖厅,过道能走两个人,可客厅挤得放不下大沙发,主人说“每次路过都觉得浪费”。

这不是房子的错,是传统格局把空间割太碎。客餐厅分开,必须留过道,不然没法走。可现代人需要“能一起玩的空间”——孩子写作业,大人做饭,能随时说话,过道反而成了阻碍。

横厅就解决了这个问题。案例里的170平四室,客餐厅连在一起,没了过道,能放三人位沙发,还能摆大餐桌。甚至加了西厨,煮咖啡时能盯着孩子看电视,比竖厅的“各管各”方便多了。

为了让横厅更实用,他们做了三个调整:进门加门厅,鞋柜和储藏间一起做,不让鞋子乱堆;主卫缩面积做衣帽间,比浴缸常用;北阳台改洗衣房,餐厅外留休闲区,连猫都有地方跑。

现在他们家,早上妈妈在西厨煮牛奶,孩子在客厅拼积木,爸爸在餐厅看报纸,风从南阳台吹过来,带着咖啡香。晚上一家人坐沙发投屏看电影,磁吸灯照得空间暖暖的,比传统竖厅的“分开坐”舒服多了。
有人说横厅“不符合传统”,可生活不是为了符合传统,是为了符合自己。传统的“南北对流”是为了舒服,现代的“横厅一体化”也是为了舒服。不管沙发靠不靠墙,能让家人一起笑的房子,就是好房子。
本网站的文章部分内容可能来源于网络,仅供大家学习与参考,如有侵权,请联系站长QQ18376601进行删除处理。

蜀ICP备2021014085号-4