简约美式与北欧自然风混搭,打造清新温馨家居空间
2025.08.06 3 0
当简约美式风格与北欧自然美学相遇,空间焕发出独特的混搭魅力,美式的利落线条与北欧的天然材质交融,营造出清新唯美的氛围,原木色家具与纯白基调相得益彰,辅以棉麻布艺和绿植点缀,既保留了美式的温馨感,又注入了北欧的轻盈通透,几何图案与做旧金属元素的碰撞,在简约中增添层次,而开放式布局与大面积采光设计则进一步强化了空间的舒适性,这种跨界混搭不仅打破了风格的界限,更以低饱和色彩和功能性设计,打造出兼具艺术性与生活感的理想居所。(149字)
想装出时尚又温馨的家,选单一风格总觉得差点意思?老话说“不破不立”,装修也一样——单一风格的“规矩”,往往框住了家的温度。

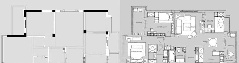
其实“简美”本身就是混搭的产物——国人喜欢极简的干净,又放不下美式的悠闲,把两者揉在一起,就有了“既清爽又舒服”的风格。就像案例里的135平三居室,设计师没守着单一风格的“教条”,反而把北欧的自然和简美的舒适拧成了一股绳。

混搭不是乱搭,是顺着房子的“脾气”来。原户型采光好,就保留北欧风的大窗户,让阳光能铺满客厅;想让空间更通透,就用美式的开放式厨房,把客餐厨连在一起。餐厅墙上挂着美式装饰画,桌角摆着北欧风绿植,叶子上的晨露映着阳光,连空气都带着生机。

这样的家,过起日子来特别“得劲”。早上在北欧风的餐厅里,就着阳光吃煎蛋,木色餐椅摸着温温的;晚上窝在简美皮质沙发里,裹着羊毛搭巾追剧,旁边的黄铜台灯泛着暖光。周末的时候,在玄关的榻榻米小空间里,摆上茶盘,翻两页书,连风都慢下来了——这才是家该有的样子。

老祖宗讲“天人合一”,其实就是让环境适应人。混搭风格刚好符合这个理:国人喜欢“简”,所以用北欧的极简线条;喜欢“闲”,所以用美式的悠闲家具。从科学上说,黄色调能增加温馨感,就像沙发墙上的美式油画;蓝色调能提升冷静,就像客餐厨的浅蓝乳胶漆,两者混搭,刚好平衡了情绪——不会太闹,也不会太闷。

以前看装修案例,总觉得单一风格有“bug”:北欧风太冷淡,像住在样板间;美式风太厚重,像进了老房子。想找个“又时尚又温馨”的风格,比找合脚的鞋子还难。

后来才明白,不是风格不好,是人的需求太“贪心”——既想要极简的干净,又想要美式的悠闲;既想要北欧的自然,又想要简美的质感。单一风格怎么能满足这么多“想要”呢?

那不如“拆”了风格的框,把喜欢的元素都装进去。比如案例里的客厅:简美皮质沙发坐起来舒服,北欧单椅看起来清爽,两者搭在一起,像穿了件“舒服又好看”的毛衣。电视背景用简美的石膏线,显得大方;茶几用北欧的圆形桌腿,加了点时尚——这样的搭配,比单一风格有意思多了。

想装混搭风,其实没那么难。先选个“主调”,比如简美做基础,再加北欧的元素:比如用胡桃木家具(简美),配白色移门(北欧);用黄色调装饰(简美),配绿植(北欧)。或者反过来,北欧做基础,加简美的元素:比如用浅蓝乳胶漆(北欧),配美式装饰画(简美);用木色地板(北欧),配皮质沙发(简美)。关键是“平衡”——不要让某一种风格太“抢戏”,像两个人跳舞,你退一步,我进一步,刚好和谐。
有人说“混搭风不正规”,可装修从来不是“考驾照”,不需要守着“单一风格”的规矩。老话说“鞋合不合适,只有脚知道”,家合不合适,只有住在里面的人知道。拒绝形式主义,追求实用主义——不管是北欧还是简美,能让家人舒服的,就是最好的风格。就像案例里的屋主,装了个“不是单一风格”的家,却过上了“刚好是想象中”的日子——这才是装修的意义。
本网站的文章部分内容可能来源于网络,仅供大家学习与参考,如有侵权,请联系站长QQ18376601进行删除处理。

蜀ICP备2021014085号-4