110平现代美式家装典范,开放式餐厨+优雅弧线,打造美剧同款轻奢住宅
2025.07.26 3 0
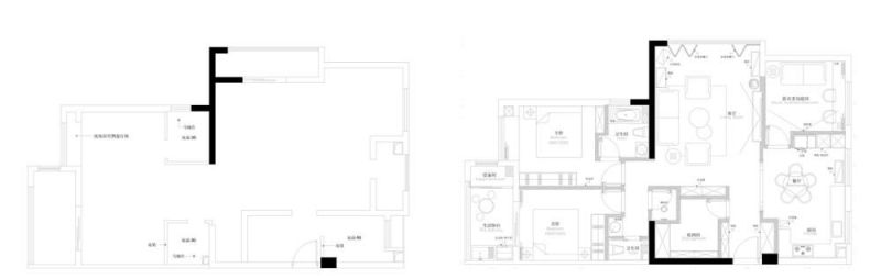
110㎡现代美式风格装修案例近期走红网络,凭借巧妙的空间改造与设计细节获赞无数,业主打通餐厅与厨房形成开放式餐厨区,搭配弧形门洞与半墙隔断,既增强互动性又保留美式韵味,全屋以奶油白为主色调,辅以深棕木质家具、黄铜灯具和复古绿软装,营造出经典美式温馨感,客厅采用人字拼木地板与石膏线背景墙,主卧定制拱形门衣帽间,细节处融入法式线条与藤编元素,实现高级感与实用性的平衡,网友直呼"宛如美剧场景",尤其推崇其弧形设计与色彩搭配,堪称小户型改造范本。(198字)
当下家居圈,简约风、奶油风占据主流,但最近有股“美式回潮”悄悄击中年轻人的心——不是传统美式的厚重沉闷,而是融合了现代元素的“新美式”,像美剧中那种“随便窝在沙发里都舒服”的温馨感,正好满足了“既要实用又要仪式感”的生活需求。

美式风格的底色本就是“舒适优先”,起源于美国开放的生活方式,融合了欧洲经典设计与本土自由精神;而现代美式则在此基础上做了“聪明的减法”:去掉繁琐的雕花,加入简洁线条,保留壁炉、实木、复古瓷砖这些经典元素,让空间更适配当下小户型(比如110平),同时注入年轻人喜欢的“个性”与“鲜活”。很多人觉得美式不适合小户型,但这位女屋主的110平三居室却用实际效果打破了偏见——她用“打通餐厨”解决了原始户型的最大痛点,用“弧形设计”柔化了空间棱角,用“经典+个性”的搭配让家既有氛围又有温度,看完才懂:原来美式也能这么“年轻”。

原始户型的“硬伤”很典型:110平的三居室,厨房和餐厅都小得转不开身,进门左手边的不规则墙占了空间,导致收纳不足、动线混乱,这也是很多小户型家庭的共同困扰。女屋主的解决方案很“美式”——把厨房和餐厅打通,做开放式布局。原本分隔的两个小空间合并成一个大区域,视觉上瞬间宽敞了一倍,备餐时转身就能拿到餐厅的食材,用餐后直接把盘子放进厨房,动线缩短了一半,完美符合美式“实用优先”的原则。餐厨区的设计也很有“现代美式”的味道:石膏板拉平吊顶搭配一圈石膏线(经典的美式细节),墨绿色柜体(复古的色调)搭配小花砖(做旧的质感),既保留了美式的复古感,又因为简洁的线条显得不厚重;实木圆桌铺着小碎花桌布,搭配黄铜玻璃餐吊灯(经典与现代的融合),暖光洒下来,像美剧中的用餐场景,精致又温馨。窗台边的实木边柜做成了咖啡角,平时煮杯咖啡、做份下午茶,生活的仪式感就这样藏在细节里。

弧形设计是这个家的“柔化魔法”。玄关用弧形拱门连接收纳间,代替了传统的门,用素雅的布帘做遮挡,既有诗情画意,又柔化了进门的直角;餐厅与客厅之间的弧形设计,让两个区域自然衔接,没有生硬的分隔,反而增加了空间的优雅感。这些弧形元素像“隐形的纽带”,把玄关、餐厅、客厅连在一起,让整体风格更统一,也让空间显得更“放松”——毕竟,美式的核心就是“无拘无束”。

经典与个性的平衡,是这个家最有温度的地方。客厅里,成品壁炉(适合小户型的经典元素)旁边放了一张舒适的单人沙发,搭配落地吊灯,像美剧中的“放松角落”,傍晚窝在这里看剧,疲劳瞬间一扫而光;另一面墙做了整面玻璃展示柜,用来放主人收藏的乐高(个性化装饰),灯光加持下,既展示了爱好,又增加了时尚感——原来美式也能装下年轻人的“小任性”。卧室的设计更注重“温馨与实用”:床头贴了带花纹的壁纸(经典的美式元素),搭配复古的大床,暖光灯光下,美式的氛围感拉满;定做的两组白色衣柜(现代简洁),满足了收纳需求,又不会因为深色而显得压抑。卫生间虽然小,但细节很“美式”:双色瓷砖(复古的质感)搭配原木洗手盆(自然的材质),黄铜拉手(经典的金属元素)点缀其中,精致感呼之欲出;现场砌的浴缸,刚好贴合空间尺寸,睡前泡个热水澡,生活的幸福感就这样藏在细节里。

其实,现代美式不是“传统的复制”,而是“经典的重生”。它保留了美式最核心的“舒适”与“温度”,用开放式布局解决了小户型的空间问题,用弧形设计柔化了现代生活的“棱角”,用个性化装饰满足了年轻人的“自我表达”。就像这个110平的家,没有夸张的造型,没有昂贵的材料,却用“打通餐厨”“弧形设计”“经典+个性”的搭配,打造了一个“住多久都不觉得过时”的空间。

清晨在咖啡角煮一杯咖啡,傍晚在壁炉前看剧,周末在餐厅做一顿大餐,每一个场景都让人觉得:这才是生活该有的样子。好的装修风格从来不是“跟风”,而是“懂你”。现代美式之所以走红,就是因为它懂年轻人的需求——既要实用的烟火气,又要浪漫的仪式感;既要历史的温度,又要现代的鲜活。如果你也想装一个“像住美剧中”的家,不妨试试现代美式——它会用细节告诉你,生活可以很舒适,也可以很有个性。


本网站的文章部分内容可能来源于网络,仅供大家学习与参考,如有侵权,请联系站长QQ18376601进行删除处理。

蜀ICP备2021014085号-4