小户型客厅巧变衣帽间?她逆向布局省出10㎡空间
2025.07.22 3 0
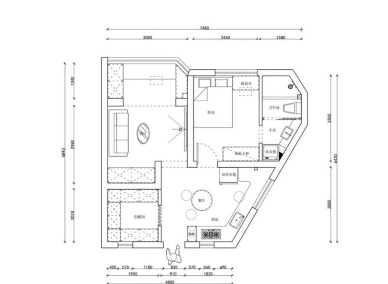
小户型不必牺牲客厅功能,逆向思维布局反而能实现空间倍增,一位屋主打破常规,通过巧妙设计在有限面积内同时保留客厅并挤出独立衣帽间,其核心策略包括:采用多功能家具实现场景叠加,如折叠餐桌兼作工作台;利用墙面垂直空间打造嵌入式储物系统;将传统沙发区改为卡座式设计,底部暗藏收纳空间;通过玻璃隔断划分区域保持通透感,这种"空间折叠术"证明小户型也能兼顾美观与实用,关键需打破固有格局,根据动线需求重组功能分区,最终效果实现空间利用率提升30%,满足年轻家庭对品质生活的多元需求。(198字)
上海这对小夫妻的70㎡旧房改造,简直是小户型界的“空间魔术师”。

原本空间规划混乱、异形结构逼仄的老房,被他们用逆向思维重新盘活——把次卧室改成客厅,原餐厅“变身”大衣帽间,开放式厨房融合餐厅,阳台改造成书桌区,连异形卫生间都做了干湿分离。最绝的是,法式浪漫元素(拱形门洞、石膏线拼色墙)和实用功能(不锈钢衣架衣帽间、人字形地板)居然能无缝融合,硬是让小房子既满足了收纳需求,又保留了休闲、接待甚至临时客房的功能,堪称“麻雀虽小五脏俱全”的典范。

这套设计最妙的是“反其道而行之”的勇气。

传统小户型总想着“舍客厅保其他”,但这对夫妻偏要“保客厅”——毕竟客厅不只是看电视的地方,更是放松心情、接待亲友甚至临时睡觉的“多功能场”。而把原本昏暗的餐厅改成衣帽间,用布帘代替厚重柜门,上下层不锈钢衣架最大化利用垂直空间,既轻盈又能装,完美解决了小户型“收纳焦虑”。异形厨房和卫生间的处理也很聪明:厨房贴墙做橱柜,动线流畅还塞得下大冰箱;卫生间干湿分离,干区塞下洗衣机干衣机,连阳台都“解放”出来当书桌,每个角落都被“榨干”了价值。法式元素的运用也不刻意,拱形门洞柔化空间边界,石膏线拼色墙增加层次,既浪漫又不浮夸,像给房子穿了件“温柔的外衣”。

给小户型装修提个醒:空间不够,“重组”来凑。别被传统格局框死,先列清自己最需要的功能(比如这对夫妻最想要衣帽间和客厅),再把“鸡肋区”(比如采光差的餐厅)和“刚需区”(比如客厅)对调,往往能“变废为宝”。隔断别只盯着实体墙,布帘、玻璃移门、拱形门洞都是“空间显大神器”,轻盈又能划分区域。异形空间别慌,贴着墙做定制柜、做开放式设计,反而能“藏拙”;风格元素选1-2种(比如法式的拱形、石膏线)贯穿全屋,比堆一堆装饰更显高级。记住,家是用来住的,怎么舒服怎么来,“逆向操作”说不定能打开新世界。








本网站的文章部分内容可能来源于网络,仅供大家学习与参考,如有侵权,请联系站长QQ18376601进行删除处理。

蜀ICP备2021014085号-4