99㎡轻奢温柔宅,柔弧漫光演绎日常浪漫
2026.04.29 1 0
这套99㎡的住宅以柔弧设计与暖光氛围重新定义轻奢美学,将高级感融入日常生活,空间采用奶油色为主调,搭配弧形墙面、圆润家具线条,弱化棱角的同时营造温柔包裹感,无主灯设计通过隐藏式灯带、艺术吊灯实现多层次光影渲染,金属与玻璃材质点缀提升精致度,功能布局上,开放式餐厨与悬浮岛台增强互动性,主卧套房配置独立衣帽间,次卧通过榻榻米实现收纳与休憩平衡,全屋以“柔化空间”为核心,用曲线语言串联起轻奢格调与实用主义,打造出兼具仪式感与松弛度的理想居所。(约180字)
空间设计出品┃转载请注明来源
来源:空间设计(ID:kongjiansheji88)
简约轻奢风

每天给你分享一个案例设计
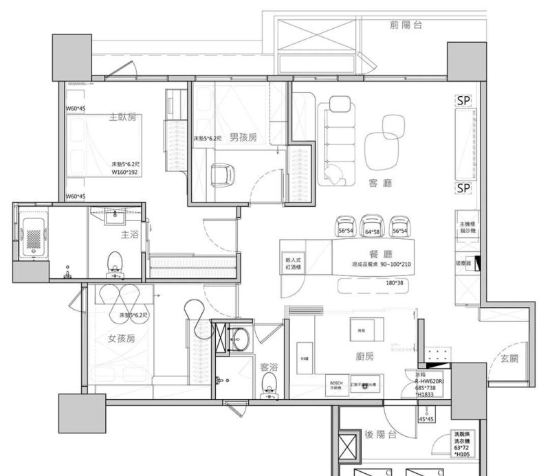
这套住宅面积:99㎡(套内)
格局:3室 2厅 2 卫
人数:2大1小1猫
由大漾帝空間設計设计

全室没有生硬棱角,全是柔和圆弧线条,北欧极简的纯粹基调里,藏着茶镜与金属饰边的小心思。流金般的细节穿梭在沙发背墙、门和灯饰之间,粼粼光泽衬得整个空间精致又高级,宅家都像在度假!


99㎡也能装出精品酒店既视感,取名《夏沐时光》,光是站在门口,就被那抹通透感治愈了~大漾帝空间设计也太会了吧!长虹玻璃的朦胧肌理、玫瑰金镀钛饰条的细腻光泽,再搭配茶镜折射光影,把光线揉成一帘温柔薄纱,公领域的层次感直接拉满,清透又温润





中岛的冷冽石纹太有质感了,和温润木皮、细腻猫抓布艺撞出奇妙火花 冷暖材质交织,既有现代设计的利落,又有居家生活的暖意,不张扬却越品越有韵味,这才是轻奢该有的样子~


改造亮点直接封神 拆了原有的封闭隔墙,厨房做成开放式+多功能中岛,不仅显大,还打破了空间界限,公领域的生活律动直接拉满,做饭、聊天都不耽误!




主卧动线也太懂女生了吧 微调入口动线,把化妆区和衣帽收纳整合在一起,圆弧门巧妙藏起杂乱角落,视觉上一体成型,利落又整洁,梳妆都变有仪式感~


整排衣柜,收纳力拉满✅ 梳妆区弧形活动门,闭合后和柜体融为一体,氛围感绝了;次卧架高掀床+墙面洞洞板,储物、灵活收纳两不误,桌面再也不会乱糟糟~






本网站的文章部分内容可能来源于网络,仅供大家学习与参考,如有侵权,请联系站长QQ18376601进行删除处理。

蜀ICP备2021014085号-4