90后设计师巧用原木光影,打造自然风理想生活空间
2026.03.31 2 0
90后设计师以自然风天花板为灵感,巧妙运用原木、光影与留白三大元素,重新定义理想生活空间,通过保留木材原始纹理与温润质感,搭配通透的光影变化,营造出简约而不失温度的氛围,大面积留白手法赋予空间呼吸感,让居所成为逃离喧嚣的治愈之地,这一设计理念打破了传统装修的堆砌模式,以"少即是多"的哲学,在功能性与美学平衡中,为都市人打造出兼具自然诗意与现代实用性的生活场域,展现了年轻一代对返璞归真生活方式的追求。(148字)
作为一家自建房平台
发现越来越多的人回老家建房
有的是简单的修缮改善居住环境
有的是想把老家作为自己居住的第二场所
偶尔假期回家或者周末回家小住
我们做了一个分享回老家建房
真实生活的系列
探索发现不同的生活方式
今天分享的案例
位置位于 上海金山
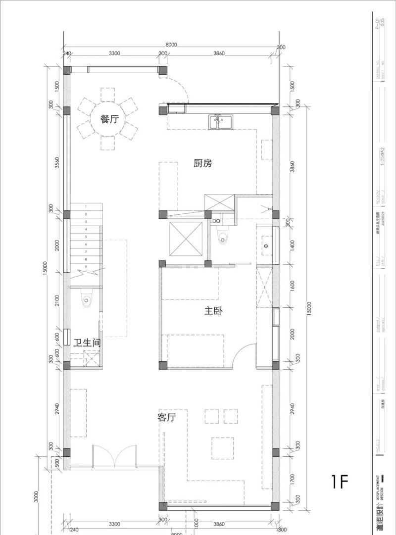
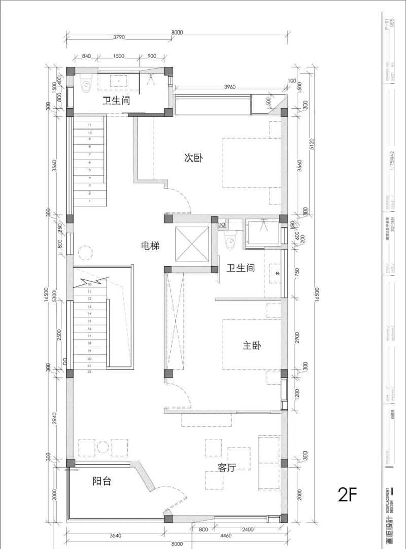
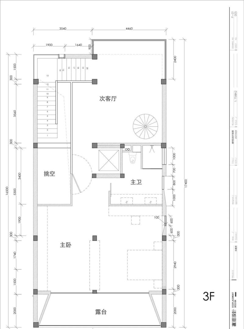
占地面积 120平米
主体面积 450平米
主体费用 70万
总体费用 200万

屋主徐南南的人间理想说:一层一个卧室,保留了很大的公共空间和采光,一层爷爷住,二层老丈人住,三层是夫妻屋主住,四楼是阁楼,也可以作为工作室,房子的采光和原木的用色让整个房子很温暖.
01风景和细节才是家宁静的根源







当有个归宿的地方焦虑感就没那么强了告诉自己慢一点,不着急, 简简单单的基础装修+加宜家家具也能很出圈, 家是自己内心的反馈,不用跟流行抄作业.
02一个只有硬装就够的家










在重软装轻硬装的这些主流下少了很多的真正的设计思考,就是刷一个纯色,然后全靠防版或者超贵的家具摆拍形成了所谓的设计缺失了很多设计上的比例的思考,色彩平衡的思考,室内与室外的关系思考
03被邻居和朋友各种夸赞










从建房之初的各种不理解、质疑,到建好后被一波波的参观,终于得到了家人的接受赞美,还好自己坚持下来了,家人孩子在充满阳光、温暖的家开心的生活,一切都很值得.
04按照自己的审美建造的家











每个人对于家的理解不一样,有人喜欢浪漫的复古风、有人喜欢中式、有人喜欢极简风,我更偏爱温暖的原木带来的温润感以及建筑原木的粗糙颗粒感,没有精细过度的装修,简简单单就好.
05每个做设计的人都有自己的偏执










建筑对于设计师来说,不是冰冷的墙体,更要有光,空间的布局上注重光线的变化,所以这个家尽管是在两栋楼之间,但是因为有足够多的窗户以及很好的设计,采光这块也没有受到很大影响.
06家门前的氧吧、洗眼睛的绿色








一到周末,各路朋友就问阁楼这周有没有被霸占 ,我花了那么多钱搞装修 ,唯独阁楼,就铺了个底板,开了几个洞, 画了几个圆圆圈圈 ,朋友们却独独爱毛胚,看来还是原生态更自在.

下面是本楼房的平面布局图





本网站的文章部分内容可能来源于网络,仅供大家学习与参考,如有侵权,请联系站长QQ18376601进行删除处理。

蜀ICP备2021014085号-4