136㎡美式轻奢风装修,颠覆你对家的想象!
2026.03.30 3 0
这对夫妻的136㎡美式轻奢风住宅重新定义了现代装修美学,巧妙融合经典美式的厚重感与轻奢风格的精致细节,空间以灰白为主基调,搭配金属线条、丝绒材质和艺术感灯具,营造出低调奢华的氛围,开放式布局串联客厅、餐厅与厨房,通透明亮;主卧采用套房设计,配备独立衣帽间和梳妆台,兼顾实用与格调,软装精选抽象画、几何地毯等现代元素,与美式护墙板形成有趣碰撞,全屋通过色彩层次、材质对比和智能家居的融入,既保留了美式的温馨,又增添了摩登气息,为追求品质生活的家庭提供了教科书般的范本。
美式和轻奢的结合一定是精致与美好的结合。
下面介绍的这套136㎡美式轻奢风,真的美爆了。

设计简介:
装修风格:现代美式轻奢风格
实际面积:136平米
空间格局:4房2厅
设计师:茱莉娅设计师
项目位置:长沙市-澳海望洲府
装修造价:半包价格12.16W
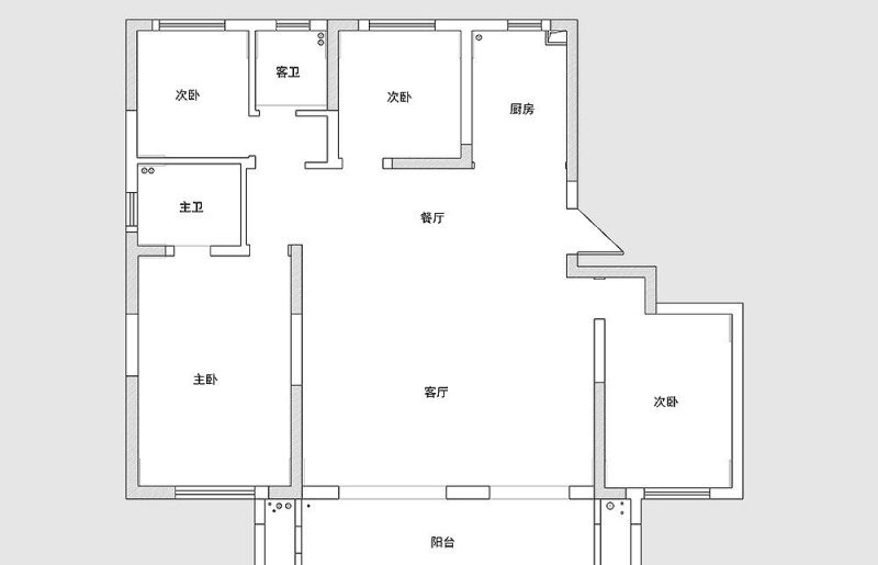
户型图

先看看房子户型的整体格局,家里面只有一个阳台空间,但是这个阳台空间特别大,对外的风景也特别好,是一个很不错的户型。
没有玄关,打开房门就是开阔的客餐厅空间,进门的右手边是厨房空间。
家里面总共是四个卧室空间,其中靠阳台这边的两个卧室面积都还比较大;靠厨房那边的两个卧室空间都比较紧凑。
针对三口之家,这样的户型结构已经完全满足。
平面图

通过和业主的沟通,设计师的精心设计,把平面布局做了一些不是很大的设计调整,让房子的利用率变得更高,使用更方便。
餐厅空间其实并不大,但由于它是一个“开阔空间”,所以视觉上还是很大的;餐桌的设计还加入了岛台,这样餐厅的实用性更强了。
客厅面积特别大,其实完全可以向沙发靠电视机方向靠一点,然后沙发背后来再规划一个茶室或者书房空间,就特别舒服了,家里面也多了一个功能空间。
为了让厨房操作台面更多,储物收纳功能更加强大,把厨房进行了外移的布置,厨房多了一些面积出来。
玄关



虽然房子没有玄关,但是我们在设计的时候不能缺乏一种仪式感,正对面做了一个隔断造型,下面是石台。其实这个石台造价并不高,但是看上去很高级,看上去很有质感。其实他就是先做一个盒子,然后再在外面贴大理石,这样制作而成的,成本造价并不高。金属的隔断材质,也给整个造型提高了档次。特别给玄关给了三个角度,各方位地欣赏它的高级感和品质。
客厅


这个客厅比一般的大平层客厅都要大,这个地方其实完全可以利用成两个空间,但是业主并不接受。
所道出来的原因很简单:当初她购买这套房子的时候,看重的就是它大客厅的格局,如果把它改小了,改成正常的客厅尺寸功能,让她觉得失去了当初她的初心了。
其实做成两个客厅,视觉效果是一样的。

其实说这个客厅大,它只是沙发墙到电视墙的进深大,想电视墙和沙发墙的开间都并不大。为了体现出整体的高级感,呼应入户玄关的设计效果,在电视墙这里设计了大理石,来响应玄关的设计。
休闲阳台

休闲阳台和客厅做了通铺的设计布局,整个空间显得更加宽敞、舒适、又大气了。
地面瓷砖的款式选得非常好,看上去就像是一幅艺术画一般,很有品味。

轻奢的美让我们内心扑捉,轻奢的质感是我们崇敬、向往的美;轻奢是一种装修风格,也是一种生活方式。
阳光正好之时,带着愉悦的心情,闲坐于此,喝着茶、享受着阳光沐浴,这生活让人十分的神往。
餐厅

在玄关背后就是餐厅空间,玄关隔断造型连接着岛台,看上去一体成型很整体、很美观。
轻奢款的餐桌椅,有一种别样的质感;上面的艺术吊灯也很别致,很有艺术感。

从这个角度看餐厅,开阔的视野,超好的采光,给了空间无与伦比的绝佳效果。
餐桌摆放的四人位,对于三口之家来说足以了。
主卧室


现在看到的是主卧的休息区域,由于有设计专门的主卧换衣区,所以在休息区没有看到衣柜。
这个视角的背景中间是一幅壁画,两边护墙板造型,层次感有了、精致感也有了。

主卧的衣帽区,一组“7”字形的衣柜。
本网站的文章部分内容可能来源于网络,仅供大家学习与参考,如有侵权,请联系站长QQ18376601进行删除处理。

蜀ICP备2021014085号-4