2026年新中式设计爆火关键,3个布局细节让自建房价值倍增
2026.03.10 3 0
2026年新中式设计将引领自建房潮流,三大核心布局细节助房产增值,采用"前庭后院"的院落格局,融合现代功能分区与传统园林意境,提升空间层次感;运用"框景借景"手法,通过镂空屏风、月亮门等元素实现视觉延伸,增强建筑与自然的互动;创新性打造"多功能灰空间",如檐廊茶室、下沉庭院等过渡区域,兼顾实用性与文化韵味,这些设计既保留飞檐、格栅等中式符号,又结合智能家居等现代科技,使建筑溢价能力显著提升,满足新生代对文化认同与舒适生活的双重需求。(约150字)
其实,最懂中国人的房子,始终还是那一方合院。正如林语堂先生所言:“宅中有院,院中有屋,屋中有院,院中有树。”这种与自然共生的居住智慧,在现代自建房中正经历着一场惊艳的回归。
今天我们要为您拆解的这套双层新中式合院,占地尺度从容,布局进退有据。它不仅复刻了苏派建筑“白墙黛瓦、飞檐戗角”的清雅风骨,更在内部构造上,针对现代农村生活的琐碎需求做了深度改良。它不再只是一个冷冰冰的建筑外壳,而是一个能纳四时之景、承三代同堂的鲜活载体。

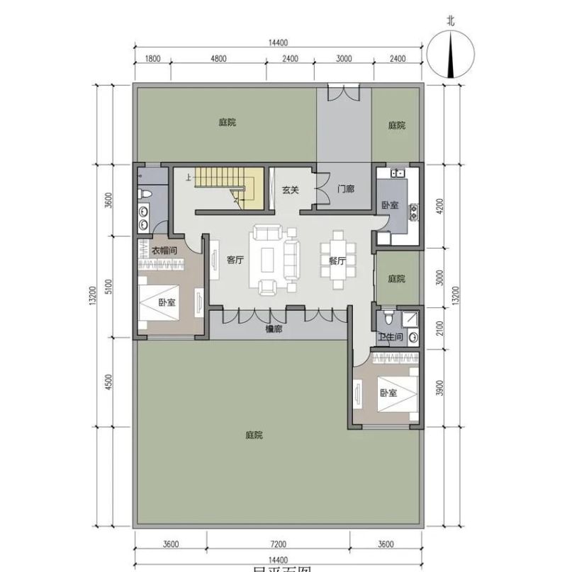
一、 庭院布局:把自然借进生活
这套设计的精髓在于其多重庭院布局。传统的农村建房往往忽略院子的利用,而本方案将庭院与建筑进行了深度的“交织”。
南向大庭院: 作为入户后的第一视觉重心,宽阔的草坪和留白设计,既能作为家人的休闲场地,也为建筑提供了绝佳的采光与通风路径。
私密内天井: 巧妙的L型或U型围合,创造出幽静的内院。在这里,您可以品茶、莳花,这种“隔而不绝”的设计,让室内每一个角落都能感受到四季的流动。
围墙与漏窗: 建筑外围采用经典的中式白墙黛瓦,点缀中式漏窗,不仅保证了居住的私密性,更让路过的行人也能瞥见一丝中式的朦胧美。

二、 空间哲学:动静分区,装下三代同堂的体面
好的设计,不仅是视觉的享受,更是对生活动线的极致精研。在空间规划上,精准捕捉到了农村家庭最核心的两个关键词:人情味与现代性。
1F:礼序社交,是对生活最诚挚的敬意
一层作为全家的公共面孔,承担着接待亲朋与日常聚会的重要功能。
客餐厨一体化,打破边界: 步入室内,客厅与餐厅采用无隔断设计。这种通透感不仅让阳光能穿透内院洒满室内,更在视觉上极大地扩充了尺度。逢年过节,当亲友齐聚一堂,长辈在沙发闲谈,晚辈在餐桌嬉闹,这种“大空间”带来的热闹氛围,正是农村自建房最珍贵的底色。
入户玄关的仪式感: 与开门见山的粗犷不同,本案特设了独立玄关。这不仅是一个换鞋收纳的过渡区,更是心理上的“避风港”,完美契合了传统文化中“藏风聚气”的居家审美。
长辈房的温情考量: 我们深知老人对土地的情结,因此将老人房安置在首层光照最充足的南向位置,并配备独立卫浴。这不仅避免了长辈爬楼的劳累,更给予了他们一份属于自己的私密与尊严。

2F:私密起居,属于灵魂的休憩之地
顺着木质楼梯拾级而上,空间由喧嚣转入静谧。如果说一层是留给客人的,那么二层则是完全留给自我的。
主卧套房: 主卧不再只是一个睡觉的地方,而是一个集“睡眠、衣帽、洗浴、观景”于一体的小世界。独立的衣帽间让生活更有序,而那个推门即达的宽大露台,则是主人在清晨或深夜,与远山、与明月对话的专属看台。
起居室与茶空间: 二层中心位置留给了一个极具格调的公共休闲区。它可以是孩子们的游戏领地,也可以是主人的静谧茶室。最精妙之处在于它与露台的无缝衔接,当清茶的余香混合着院子里的泥土芬芳,生活的琐碎瞬间被治愈。
全景视角: 通过二层的俯瞰视角,整个院落的景致尽收眼底。这种“俯察品类之盛”的体验,是高层住宅永远无法企及的自由。

三、 使用性能:不只是好看,更要好住
很多人担心新中式建筑“重观感轻性能”,但本案在实际使用性能上做了大量优化:
通透性: 大面积落地窗与木质格栅结合,打破了传统民居黑暗潮湿的弊端。即便在多雨的南方,也能保持室内的干爽与明亮。
动线科学: 楼梯位置居中,连接一二层最核心区域,缩减了日常行走的路径。
屋顶排涝: 经典的坡屋顶设计(黛瓦),不仅视觉上极具韵律感,在雨季更能迅速排水,保护建筑主体。
生活露台: 二层多处露台设计,既是观景台,也是农村必不可少的晾晒场,将美学与实用主义平衡得恰到好处。

院落,不仅是中国人居住的形态,更是内心深处的情感归宿。这套新中式双层合院,设计的初衷并非单纯的复古,而是试图在现代文明与传统情怀之间,为每一个家庭搭建一座桥梁。它既能承载现代生活的便捷与舒适,又能留住那份“晨兴理荒秽,带月荷锄归”的乡土意趣。
在这里,父母可以安享晚年,推门即是花草;孩子可以拥抱自然,抬头便是星空。一座房子,三代同堂,在黛瓦白墙间,家风得以传承,情感得以维系。这不仅是一次宅基地的翻新,更是一次关于“家”的定义与重塑。
其实,最好的房子,从来不是金碧辉煌的堆砌,而是当你远行归来,远远望见那熟悉的飞檐脊线时,内心深处涌动的那份笃定与安然。
本网站的文章部分内容可能来源于网络,仅供大家学习与参考,如有侵权,请联系站长QQ18376601进行删除处理。

蜀ICP备2021014085号-4