轩怡家装66㎡中古美家,胶片质感定格静雅岁月
2026.03.10 1 0
轩怡家装打造66㎡中古风美宅,以胶片质感诠释时光美学,全屋采用低饱和暖色调与原木元素,搭配弧形线条、藤编家具及复古黄铜灯具,营造出静谧怀旧的氛围,开放式布局串联客餐厨空间,通铺人字拼木地板增强视觉延伸感,定制复古绿橱柜与做旧金属把手相映成趣,卧室通过百叶窗光影与亚麻床品延续温柔基调,设计师巧妙运用拱形门洞、艺术挂画等细节,将功能性与美学结合,让小户型在岁月沉淀中焕发高级质感,成就"可居住的艺术品"。
理想美家从不因空间受限
在本期66㎡的美家中
设计师以业主需求为核心
用设计扩容实现超强收纳
材质搭配达到优雅质感
设计亮点


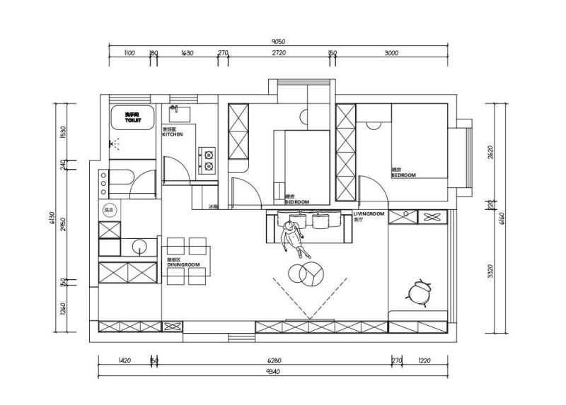
✅将阳台打通,扩大整个公区面积,视觉通透;
✅从玄关到电视墙设计整面墙定制柜,收纳能力满分;
✅洗手间设计三种功能,干湿分离,可同时多人适用。
PART.01
玄关
玄关柜倚墙而立,浓郁的电影感配色,搭配质感材质,带来原始而淳朴的感染力。

中部开放格可用于日常随手放置物品,喜庆摆件的点缀瞬间点亮玄关一角。
本套美家是小户型,面积仅有66㎡,收纳设计是重头戏。
所以从玄关开始到电视墙做连体定制柜设计。高低错落有层次,虽是整面墙,但一点也不会觉得压抑。

PART.02
客厅
打通阳台,采用客餐厅一体化设计。整个公区的光线视野通透明亮,实用空间得到增加,完全看不出这是66㎡的房子。
全屋通铺木地板,木质纹理增强家的质感,好像每一处都有属于他的故事。

打造满墙定制柜,收纳能力堪比一间房。胡桃木色门板让整套家的复古风情更加浓郁,彰显业主品味。

电视墙定制柜开放式、封闭式两种类型的储物空间。小件物展示、大件物储存全都可以整洁有序收纳其中。

复古怀抱沙发,整体版型慵懒舒适,材质光泽感十足,带来一种随性且复古的慵懒感。

餐厅依墙而置,美观同时增加功能实用性,浪漫与烟火并存。
餐桌、餐椅以黑色与胡桃木色交汇,质感与优雅不期而遇,三餐四季,幸福莫过于此!
餐边柜在玄关柜与电视墙柜之间,借窗造景的设计别具一格,让单调的整墙定制柜有新的风景。

从阳台角度看向整个客餐厅,整墙定制收纳十足,是低调的复古、是念旧的浪漫。

PART.03
厨房
小厨房,大空间。
L形布局,洗-切-炒动线明确,嵌入式厨电节省空间的同时,实用度非常强。

PART.04
主卧
因原始户型空间有限,主卧设计剔除繁杂工艺,采用简约质朴。

整墙定制柜采用胡桃木色,与客厅定制柜颜色相呼应,静谧复古的氛围,让人忍不住沉浸其中。

悬空床头柜实用的同时,也更颇具设计感,让整个卧室在有限空间内轻盈有型。

PART.05
次卧
面对小户型的次卧,如何有效进行功能划分,是个需挑战的设计。
除了舒适的睡眠区,一体化定制柜是一大亮点,兼具着书桌、书架、衣柜的作用,实用性拉满。

开放式储物空间颇多,完全不用担心收纳问题,完美实现小空间大容量。

PART.06
洗手池
为了将洗手间最大功能化,设计成干湿分离。
内嵌上下洗烘机节省空间,在小户型中使用紧凑又方便。

定制柜放上香薰,提升氛围的同时让空间变得更愉悦。

本网站的文章部分内容可能来源于网络,仅供大家学习与参考,如有侵权,请联系站长QQ18376601进行删除处理。

蜀ICP备2021014085号-4