119㎡中古风三居室,斜切柜+书房衣帽间一体化设计,三代同堂的颜值实用范本
2026.03.05 3 0
这套119㎡中古风三居室通过巧妙设计平衡了美学与功能性,以斜切柜体、多功能空间整合征服三代同堂家庭,全屋采用暖调胡桃木与复古绿碰撞,搭配弧形线条弱化棱角,营造温润氛围,亮点在于玄关斜切柜设计,既化解入户直对卧室门的尴尬,又实现换鞋凳与收纳一体化;书房与衣帽间创新合并,玻璃移门划分区域,定制L型书柜衔接悬浮书桌,侧墙嵌入通顶衣柜,实现办公储物双高效,儿童房通过榻榻米+阶梯式抽屉提升收纳,主卧则以地台床+隐形灯带凸显中古质感,全屋每1㎡都被精准规划,展现"颜值即实用"的现代居住智慧。(198字)
►点击阅读原文为您严选三家优质设计师,比价比方案

项目地址:海珠区滨江壹号
项目户型:三室一厅一厨两卫
项目面积:119㎡
项目风格:中古风
设计主创:拓界空间许工

1.业主是三代同堂的家庭,整体格局不需要太大改动;
2.长辈年纪大了,需要独立的卫生间,方便起夜;
3.衣服比较多,需要有个独立的衣帽间。


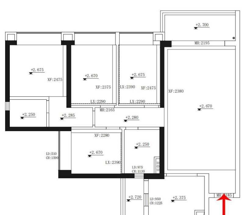
原始户型图
///
户型存在问题:
1、玄关狭窄且收纳少;
2、阳台利用率低。

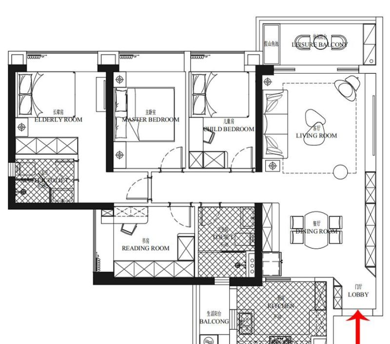
平面方案图
全屋以经典黑白棕奠定高级基调,融入自带岁月肌理的复古家具,营造出慵懒松弛、治愈自在的居家氛围。
///
设计改造分析:
1、利用斜切设计增加空间的收纳;
2、将有卫生间的卧室设计为长辈房;
3、把一间卧室改为衣帽间+书房。



玄关处利用墙面安装琴键式挂衣架,不占地面空间,便捷又不失仪式感;收纳柜侧面通过斜切设计搭配内嵌壁龛,借由灯光的晕染,为空间注入层次与温度。


地面通铺暖灰色地砖,搭配温润质朴的胡桃木家具,冷暖相融,让整个空间都沉浸在柔和、舒适的居家氛围里。

黑色皮质沙发坐镇客厅,成为空间里沉稳大气的视觉焦点;复古艺术相框错落点缀,轻松打破大白墙的单调,为整体空间注入细腻的高级质感。

定制一体式收纳柜与落地电视柜,奶油白与胡桃木撞色拼接,利落又温润,大幅提升空间视觉层次;开放格中陈列的雅致摆件,为空间沉淀出静谧东方禅意。


餐厅定制通顶餐边柜,与冰箱完美一体化嵌入,中部大面积留空设计,既是餐桌的自然延伸,也可摆放日常小家电,实用利落,又让空间充满温柔烟火气。


把阳台布置为休闲区,一侧的定制花池里,绿植错落生长,搭配造型石,将东方园林的意境浓缩于此。

另一侧则定制白色洗手台与百叶门收纳柜,既满足了洗衣、收纳的实用需求,又以极简线条消解了功能区的琐碎感。


主卧采用半墙黑胡桃木饰面作为床头背景,自然纹理温润高级;两侧灯光柔和倾洒,为整个卧室营造出静谧温暖的氛围感。


长辈房以温润胡桃木色家具为主调,自带岁月沉淀的雅致与稳重;衣柜侧边预留置物台面,贴心实用,为长辈打造安稳静谧、温润有温度的休憩空间。


儿童房铺以淡雅浅木色,营造出柔和干净的治愈氛围;衣柜转角采用弧形圆润处理,柔和线条消解空间棱角,安全又细腻。


将书房、衣帽间、化妆间三合一,打造超高利用率的多功能房,实用与颜值兼备;L型定制衣柜立体规整,轻松收纳四季衣物与被褥,整洁又大气。

利用飘窗打造悬空书桌,底部嵌入隐藏式灯带,勾勒出轻盈通透的视觉效果;上方吊柜采用封闭柜与开放格结合设计,为空间增添一抹慵懒自在的生活松弛感。


厨房整体采用低饱和撞色设计,在视觉上形成轻盈的层次感,温柔又不失高级。
在不动原有墙体结构的前提下,设计师以克制的色彩搭配、合理的空间布局,摒弃繁复装饰,让高级感自然流露,让三代人都能在这个家里,感受到从容与温暖。

本网站的文章部分内容可能来源于网络,仅供大家学习与参考,如有侵权,请联系站长QQ18376601进行删除处理。

蜀ICP备2021014085号-4