128平现代简约风,打造清爽自在的温柔家居
2026.02.26 3 0
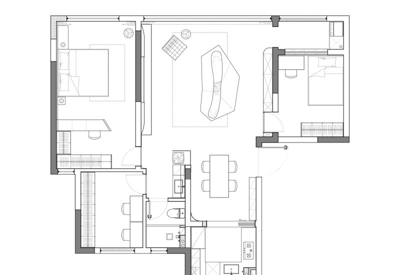
这套128平方米的现代简约风住宅,以温柔的米白色为主调,搭配原木元素,营造出清爽自在的居住氛围,开放式布局让空间更显通透,客厅采用低饱和度软装,搭配绿植点缀,增添自然生机,餐厅与厨房一体化设计,搭配简约木质餐桌,兼顾实用与美感,主卧延续整体风格,浅灰床品与暖光壁灯营造出温馨舒适的休憩环境,次卧设计为多功能房,兼具书房与客卧功能,全屋通过隐藏式收纳和极简线条,在满足日常需求的同时,保持了空间的干净利落,完美诠释了现代简约风"少即是多"的设计理念。
这是我们为一对年轻人设计的家,他们讨厌繁琐,偏爱纯粹简单的事物,我们便以黑白两色作为硬装主色,墙顶涂刷艺术漆,营造静谧柔和的光影氛围。而电视背景墙、墙体转角等处柔软的弧度,增添空间精致感。
项目地址 | 芜湖铂悦滨江
设计团队 | 研己设计
设计主创 | 卜林
合作模式 | 设计+半包施工
建筑面积 | 128㎡ 3室2厅
项目类型 | 平层
项目摄影 | 汤民逸
Part 1 #简约黑白系 餐厨


为了营造宁静纯粹的空间氛围,我们使用了色彩柔和的地砖与带有斑驳光影肌理的艺术涂料,在立面上运用玻璃、石材、木质等不同材质,强调黑色的存在感。吊顶造型与墙体转角的弧形处理,优化空间视觉体验。


在餐桌旁,透过格栅,一株绿植影影绰绰,传递出自然感。这既是干区的隔断,也是为了避免入户门正对主卧房门。相较于墙体,使用栅格隔断可以提升空间的开阔感,顺势造景,成为一个小亮点。


拆除干区隔墙,空间更为通透。我们用黑色木饰面搭配石材,带来强烈的印象。
Part 2 #Less is More 客厅


在客厅,我们从屋主们的需求——较大尺寸的电视,四面可坐摆脱传统形式的沙发,结合储物空间的水吧台——出发,摈弃冗余装饰,利用艺术漆、羊毛、木质、金属等材质,打造一个和谐、温柔的现代极简空间。


让不同立面自然衔接,适当加入体块堆叠,让空间拥有纯粹的结构感。比如我们用一道柔和的弧连接起顶部与电视墙,营造静谧温柔感,用艺术涂料、灯带加入更多光影细节,底部则利用黑色地台与其它空间呼应。


儿童房入口做隐形门,与吧台柜融为一体,柜体不到顶,搭配灯带,让空间显得轻盈、开阔。柜体本身同样延续极简的风格,只是在开放格结合不锈钢层板、灯膜,丰富层次感,让设计看起来更灵活,不死板。


生活阳台定制与墙漆同色的柜体,选择隐形晾衣架,用提拉窗做儿童房隔断,窗下也做了储物空间,可以收纳各种清洁用品,避免生活阳台因收纳不足引起的杂乱。
Part 3 #温柔的包容 儿童房


屋主们偏爱冷调,但在儿童房,在保持简约的同时,希望这个小空间能有更温柔的感觉。色彩活泼一些的床品当然是改变氛围的利器,但黑白也可以温柔细腻。我们在床头用日夜帘营造柔和的光效,白色线条与黑色木纹,没有繁杂的视觉信息,营造出柔和宁静的氛围。
Part 4 #宁静有力的冷调 主卧


我们希望主卧可以有更为个性化的表达,便在房间内搭一个富有表现力的框架,深色木质与艺术漆让光线凝固下来,营造出宁静理性的冷调空间。


主卫改为开放式衣帽间,L型衣帽间是比较常见的选择,我们选择顶天立地的黑色柜体,黑色是后退色,能让大体量柜体在视觉上没那么庞大和笨重,并与墙面形成更强的层次对比。


细腻的黑色木纹延伸到睡眠区,做床头半墙。下沉飘窗用吊顶造型修饰,艺术漆结合弧形造型,让光影变化与空间结构成为卧室最耐看的装饰。


#装修避坑小分队##家居##装修#
本网站的文章部分内容可能来源于网络,仅供大家学习与参考,如有侵权,请联系站长QQ18376601进行删除处理。

蜀ICP备2021014085号-4