这套115㎡的住宅以极简原木风打造出历久弥新的禅意空间,全屋采用浅色木地板通铺,搭配定制原木家具,从餐桌、书柜到悬浮式电视柜均保持统一暖...
原木风
2025.08.05
0
2
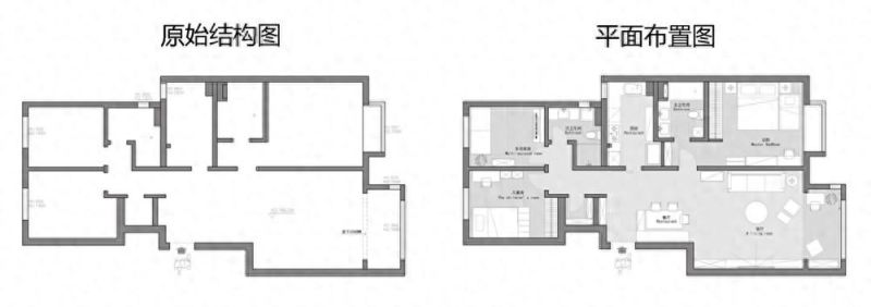
这篇今日头条文章分享了一个令人惊艳的原木风家居案例,展现了这种风格为何如此受欢迎,屋主通过巧妙运用浅色原木元素,打造出温暖、干净且舒适的...
原木风
2025.08.05
0
2
【110㎡美式风住宅:治愈系空间,实用与美学共融】 ,这套110平方米的美式风格住宅以暖色调为基调,通过原木家具、布艺软装和复古装饰品...
美式风
2025.08.05
0
3
这是一套250平米的现代简约风格住宅,由设计师亲自操刀打造,空间以简洁大气的设计语言为核心,通过利落的线条、中性色调和考究的材质搭配,营...
现代风
2025.08.05
0
3
一位屋主成功以15万预算打造出理想中的极简风家居,效果高级且实用,全屋采用低饱和色调,搭配无主灯设计、悬浮电视柜和隐形门,营造出开阔通透...
极简风
2025.08.05
0
3
这户人家的玄关巧妙融入了迷你“衣帽间”设计,大幅提升了日常动线便利性,整体空间以简洁明亮的风格为主,通过开放式布局和浅色调搭配,营造出通...
衣帽间
2025.08.04
0
3
同样是北欧风,为何她家越看越舒服?关键在于10个细节设计提升了整体舒适度,采用低饱和度配色,以浅灰、米白为主,搭配原木色,营造柔和氛围,...
北欧风
2025.08.04
0
3
这套91平米的北欧风三居室以简约设计俘获人心,入户即见通透敞亮的空间格局,全屋采用纯白与原木色为主调,搭配浅灰色布艺沙发、几何地毯等低饱...
北欧风
2025.08.04
0
3
这套152㎡的新中式风格住宅,完美诠释了传统与现代的融合之美,整体空间以简洁清澈的基调为主,通过木质格栅、水墨元素等中式细节,营造出雅致...
新中式
2025.08.04
0
3
许多业主在装修时踩坑的"餐边柜设计"问题引发热议,邻居家的高级做法值得借鉴,传统餐边柜常因深度不足导致电器无法嵌入,或开放式设计积灰难清...
餐边柜
2025.08.04
0
3